Goodshowcase
Vente appartement proche clinique Parentis-en-Born

0 appartement proche clinique en vente à Parentis-en-Born (40)

Trier par : Prix | Date

Annonces proches de vos critères

Vente appartement

Parentis-en-Born 40160 - 0

191 000 €

...Idéal pour  un pied à terre un investissement locatif à proximité des commerces et du lac de...

Voir l'annonce

Vente appartement

Parentis-en-Born 40160 - 0

190 000 €

...  Une résidence unique au coeur des Landes...

Voir l'annonce

Vente appartement

Parentis-en-Born 40160 - 0

166 000 €

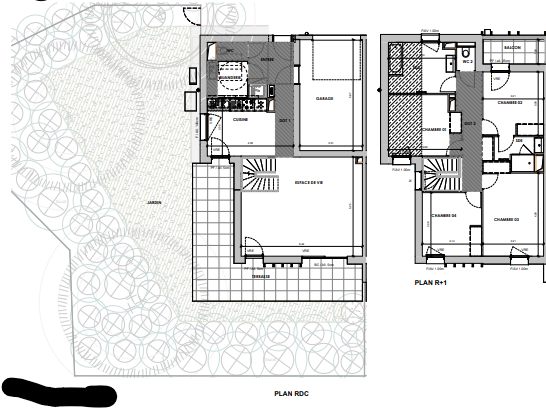
...Ce programme à taille humaine propose plusieurs logements en rez-de-chaussée et un seul étage,...

Voir l'annonce

Vente appartement

Parentis-en-Born 40160 - 0

190 000 €

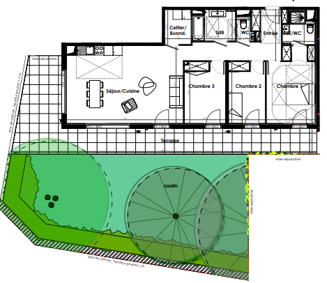
...Au premier et dernier étage de la résidence, cet appartement se compose d'une entrée avec...

Voir l'annonce

Vente appartement

Parentis-en-Born 40160 - 0

169 000 €

...Il est composé d'une entrée, cuisine séparée avec petit balcon, un séjour lumineux avec balcon,...

Voir l'annonce