Sergy 01630 - 0
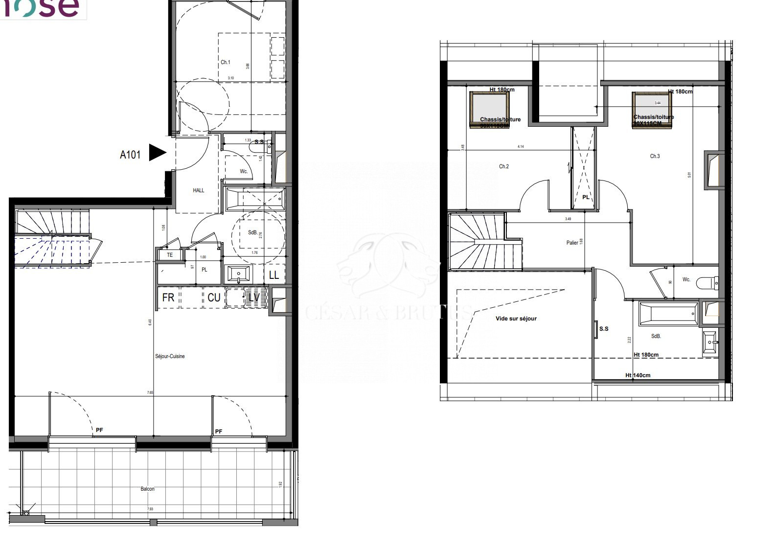
...Ce bien se compose :Un vaste séjour/cuisine lumineux ouvrant sur une belle terrasse de 15 m²...