Goodshowcase
Vente bureau à rénover Boulogne-Billancourt

0 bureau à rénover en vente à Boulogne-Billancourt (92)

Trier par : Prix | Date

Annonces proches de vos critères

Vente bureau

Boulogne-Billancourt 92100 - 0

1 510 000 €

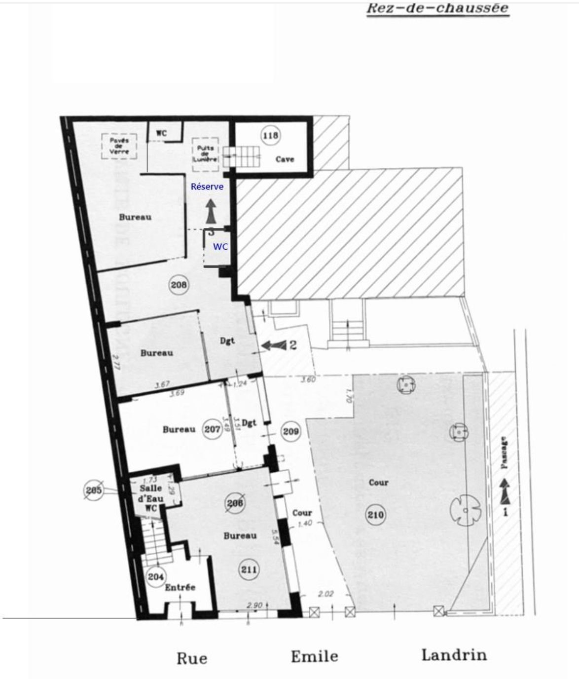
...Ils se composent comme suit : - Rez-de-chaussée :Bureau d'accueilBureau indépendant avec...

Voir l'annonce

Vente bureau

Boulogne-Billancourt 92100 - 0

1 500 800 €

...D'une surface de 148,56 m² loi Carrez, ces locaux peuvent être facilement transformés en un...

Voir l'annonce

Vente bureau

Boulogne-Billancourt 92100 - 0

1 350 000 €

...Bel emplacement pour valoriser votre activité...

Voir l'annonce

Vente bureau

Boulogne-Billancourt 92100 - 0

695 000 €

...Les bureaux sont en très bon état avec coin cuisine / sanitaire (une salle d'eau, deux WC) et...

Voir l'annonce

Vente bureau

Boulogne-Billancourt 92100 - 0

695 000 €

...Les bureaux sont en tres bon état et offrent un environnement de travail serein...

Voir l'annonce