Goodshowcase

0 local longère en vente à Orange (84)

Trier par : Prix | Date

Annonces proches de vos critères

Vente local

Orange 84100 - 0

477 000 €

...Répartition des espaces : RDC Bureaux en open space de 84 m2 m² avec sanitaires , Espace Bureaux...

Voir l'annonce

Vente local

Orange 84100 - 0

92 000 €

...Vous bénéficierez d'un environnement calme et pratique, à proximité des commodités locales...

Voir l'annonce

Vente local

Orange 84100 - 0

85 000 €

...Vente achevée...

Voir l'annonce

Vente local

Orange 84100 - 0

25 000 €

...FRAIS DE NOTAIRE REDUITS - Vente achevée...

Voir l'annonce

Vente local

Orange 84100 - 0

90 000 €

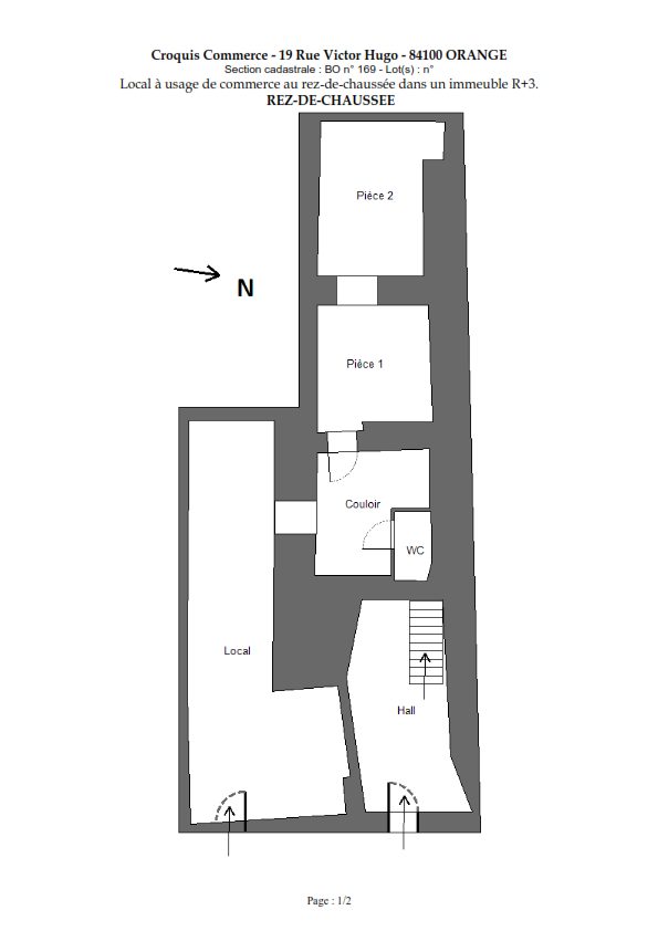
...Au 19, rue Victor Hugo, proche rue St Martin et place de la Mairie, dans une rue en plein essor,...

Voir l'annonce