Goodshowcase
Vente terrain en viager libre Carvin

0 terrain en viager libre en vente à Carvin (62)

Trier par : Prix | Date

Annonces proches de vos critères

Vente terrain

Carvin 62220 - 0

109 900 €

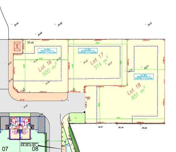
...Le terrain offre de belles proportions avec 19 mètres de façade et 37 mètres de profondeur,...

Voir l'annonce

Vente terrain

Carvin 62220 - 0

79 000 €

...14m de façade, exposé NE, 79 000€ Lot 17 : 514m², 25m de façade, exposé NE, 82...

Voir l'annonce