Goodshowcase
Vente terrain L'Aiguillon-sur-Vie

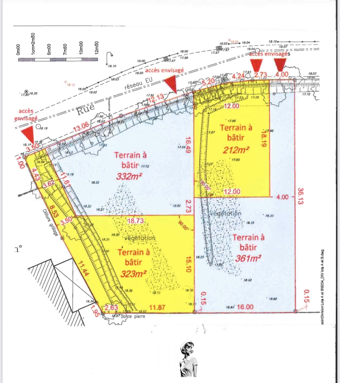
2 terrains en vente à L'Aiguillon-sur-Vie (85)

Trier par : Prix | Date

Vente terrain

L'Aiguillon-sur-Vie 85220 - 0

59 000 €

...Idéalement placé, à seulement quelques minutes de Saint-Gilles-Croix-de-Vie et de ses commodités...

Voir l'annonce

Vente terrain

L'Aiguillon-sur-Vie 85220 - 0

85 500 €

...Réalisez votre projet sur ce terrain de 620 m2, clos sur 3 cotés et viabilisé...

Voir l'annonce