*** Coup de coeur *** Charmante maison familiale de 156m2 / 800m2 avec garage de 48m2
Montbazin 34560
0
*** Exclusivité sur la commune de MONTBAZIN ***
- Situé à 15 min seulement de Frontignan et 10 min des autoroutes A9 et A709, 15 min des PLAGES, 20 min de MONTPELLIER et SETE.
MONTBAZIN est un village très agréable et pourvu de toutes commodités : épicerie, boulangerie, médecins, pharmacie, écoles, transports.
- Concernant la scolarité :
Ecole maternelle et élémentaire à MONTBAZIN
Collège à POUSSAN ( village limitrophe )
Lycées à Sète
- Je vous présente cette charmante maison familiale cossue et baignée de lumière .
Ce sont 156 m2, édifiés sur une superbe parcelle de 809 m2 avec un spacieux garage de 48m2.
Construction de qualité.
- Vous serez séduit par sa situation:
Pour le côté pratique : à 2 pas du coeur du village et des transports.
Pour son environnement : la maison est construite dans un secteur convoité, au calme et bénéficie d'une vue imprenable.
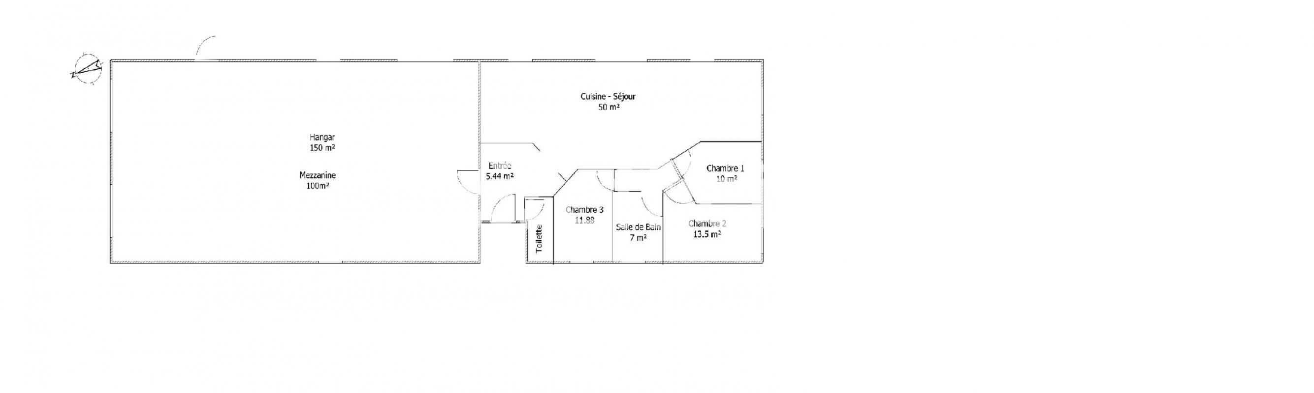
La maison est sur 2 niveaux et actuellement pourvu d'une habitation principale au 1er étage de 110 m2 avec 3 grandes chambres, et d'un appartement indépendant au RDC de 46 m2 avec 2 chambres.
Ce qui en fait un potentiel d'exploitation varié. Possibilité de relier les deux appartements avec un escalier.
Au RDC : vous pourrez apprécier de loger des parents âgés, de la famille ou amis , vos enfants qui souhaitent un peu d'indépendance, des amis ou le louer ( nuitée, mois, année selon vos envies ).
- Elle se compose comme suit:
AU RDC :
Une pièce de vie avec cuisine équipée
2 chambres
1 salle d'eau et wc
Le tout peut être aménagé à sa guise ( murs en brique) et donne accès direct au jardin verdoyant.
Volets roulants, double vitrage .
A l'ETAGE:
- Une entrée avec placard
- Une cuisine de presque
- Un salon / salle à manger avec cheminée
- Vous pourrez profiter d'une superbe terrasse avec sa vue imprenable.
Expo plein sud
PARTIE NUIT :
- Trois chambres : 12/ 13 et 14 m2
- Une salle d'eau
- Un WC
La toiture est neuve ( 2024 ) avec garantie décennale .
PRESTATIONS:
- Menuiseries doubles vitrages avec isolation phoniques et thermiques
- Climatisation réversible dans toutes les pièces et volets roulants.
- Cheminée avec insert.
- Facade en piolite
- Puit
- Terrasse couverte de 20m2 cadastrée.
Le terrain est piscinable.
Cette annonce référence 256992 vous est présentée par votre agent commercial BSK Immobilier MÉLINDA MILLIAT (EI) immatriculé au RSAC de MONTPELLIER (34000) sous le numéro 51374572900089.
Prix du bien : 497 000,00 €
Les honoraires d'agence sont à la charge du vendeur.
A propos des performances énergétiques :
Date de réalisation du diagnostic énergétique : 12/08/2024
Score DPE : 236 kWhEP/m²/an
Score GES : 7 kgepCO2/m²/an
Montant estimé des dépenses annuelles d'énergie pour un usage standard : entre 2520.00 € et 3000.00 € par an. Prix moyens des énergies indexés sur l'année 2021 (abonnements compris).
Les informations sur les risques auxquels ce bien est exposé sont disponibles sur le site Géorisques : www.georisques.gouv.fr
156 m²
3 186 €
809 m²
6
5
2
Sud
Oui
Consommations énergétiques
Logement économe
236
Logement énergivore (kWhEP/m2/an)
Émissions de gaz à effet de serre
Faible émission de GES
7
Forte émission de GES(kgeqCO2/m2/an)
Contact MILLIAT MÉLINDA
Contacter gratuitement à l'aide du formulaire ci-dessous.