*** RARE *** QUARTIER ST HONORÉ *** TERRAIN AVEC PERMIS DE CONSTRUIRE ACCORDÉ ***
Amiens 80000
0
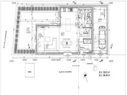
Situé dans une rue calme au coeur du quartier St Honoré, joli terrain à bâtir de 188 m2.
Un permis de construire a été accordé sur celui-ci pour une jolie maison contemporaine de 160 m2 habitables plus un garage.
Ce permis est purgé de tous recours donc vous pourrez construire immédiatement... aucun délai d'attente administratif.
Professionnels du bâtiment ce projet est fait pour vous !
Cette annonce référence 260411 vous est présentée par votre agent commercial BSK Immobilier GREGORY MATTENS (EI) immatriculé au RSAC de AMIENS (80000) sous le numéro 52009017600030.
Prix du bien : 79 000,00 €
Les honoraires d'agence sont à la charge du vendeur.
Les informations sur les risques auxquels ce bien est exposé sont disponibles sur le site Géorisques : www.georisques.gouv.fr
188 m²
420 €
188 m²
Contact Iad France - Gregory MATTENS
Contacter gratuitement à l'aide du formulaire ci-dessous.