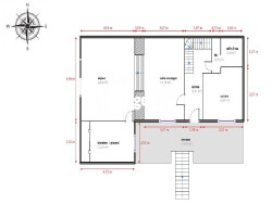
Fort potentiel de rénovation Sur une parcelle de 260m², une maison traditionnelle mitoyenne d'un côté, sur 3 niveaux de type 4 de 176m² au sol avec terrasse et jardins exposés SUD et OUEST, un garage de 17m² et une annexe aménageable de 83m²
À proximité de nombreux commerces et commodités du quotidien, des axes autoroutiers, de transports en commun et établissements scolaires.
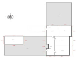
Dans une rue peu passante et sans issue, au calme et sans vis-à-vis, The Agency vous propose en exclusivité une maison en R+1 de 93m² habitables avec un extérieur de 169m² composé de deux jardins de 100m² et 50m², et une terrasse de 19m² plein ciel.
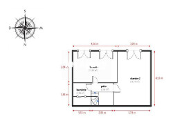
La maison est composée de la façon suivante :
Au rez-de-jardin :
Une annexe de 83m² au total réunissant 5 pièces et pouvant être aménageables.
Au rez-de-chaussée :
Un hall d'entrée, un salon / séjour, une salle à manger, une cuisine indépendante, une chambre avec placard de rangement, une salle d'eau avec WC et un WC indépendant.
À l'étage :
Deux chambres dont une avec placard de rangement et une buanderie/salle d'eau avec placard de rangement.
La maison dispose de belles hauteurs sous plafond soulignant le charme de l'ancien, d'un large garage de 17m² et le terrain est piscinable.
Très beau potentiel de rénovation. Visites avec entrepreneurs et/ou architectes fortement conseillées.
Attention DPE : F (via la production au fioul), avec changement : 'C ou D'
Taxe foncière : 1 314.00 /an Pas de copropriété
' THE AGENCY IMMO, la méthode pour une transaction réussie '
Honoraires à la charge du vendeur. Logement à consommation énergétique excessive : Classe énergie F, Classe climat F Montant moyen estimé des dépenses annuelles d'énergie pour un usage standard, établi à partir des prix de l'énergie de l'année 2023 : entre 3360.00 et 4600.00 . Les informations sur les risques auxquels ce bien est exposé sont disponibles sur le site Géorisques : georisques.gouv.fr.
Votre conseiller The Agency : Marion CRISTIANO Agent commercial (Entreprise individuelle). ' THE AGENCY IMMO, la méthode pour une transaction réussie'0
92.91 m²
4 198 €
34 m²
260 m²
4
3
1
2 (séparés)
Sud
Ouest
Oui
1
Oui
1
Consommations énergétiques
Logement économe
287
Logement énergivore (kWhEP/m2/an)
Émissions de gaz à effet de serre
Faible émission de GES
90
Forte émission de GES(kgeqCO2/m2/an)
Contact The Agency
Contacter gratuitement à l'aide du formulaire ci-dessous.