Maison familiale de 131 m2 avec grand terrain Brassac-le
Brassac-les-Mines 63570
0
Honoraires à la charge du vendeur.
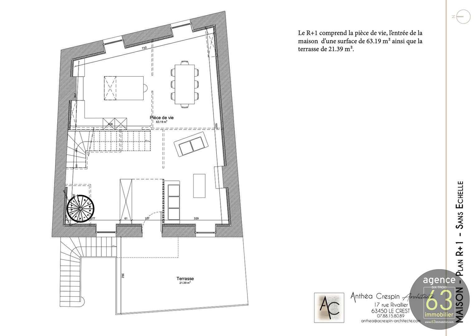
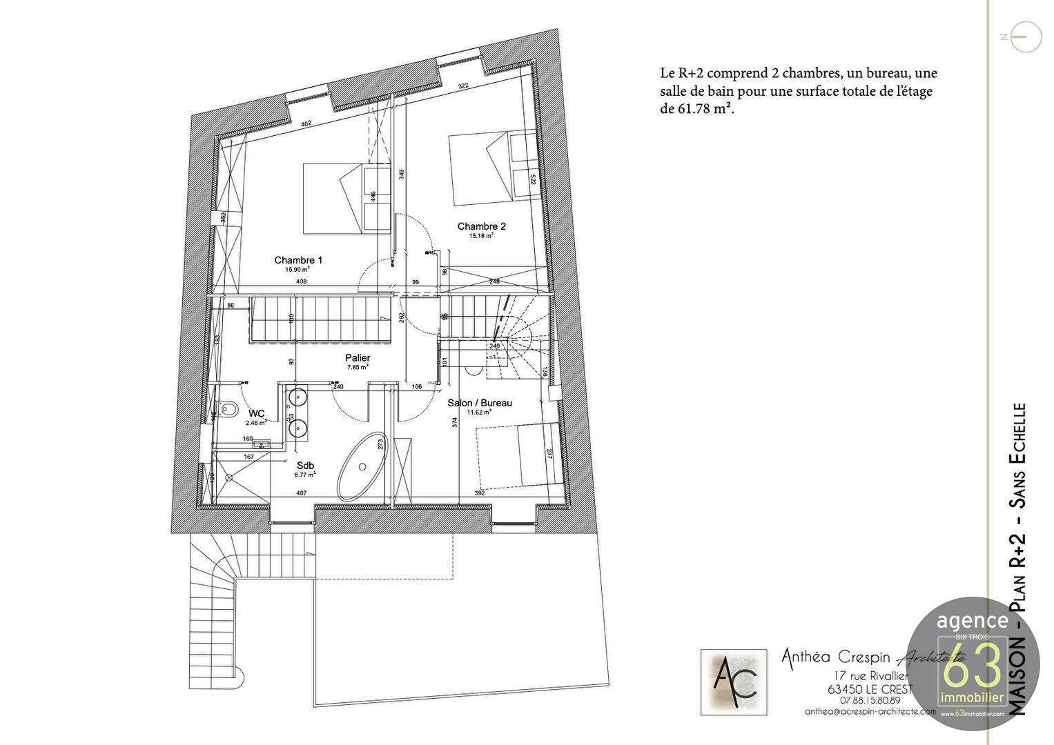
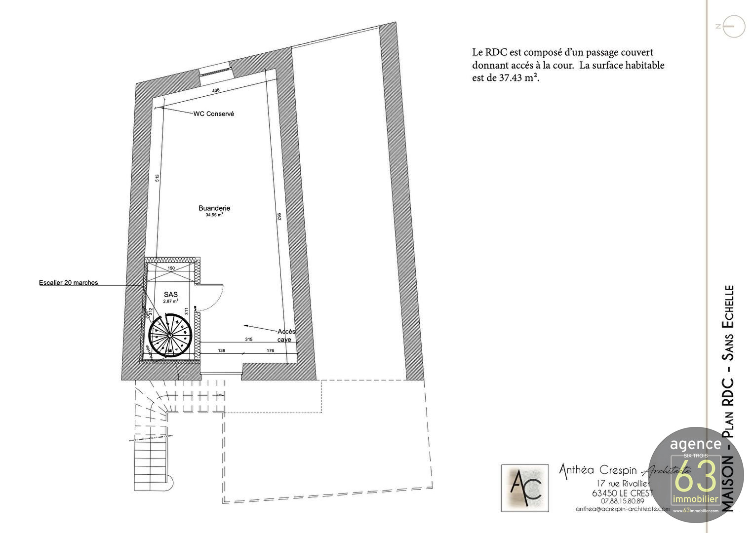
Située sur les hauteurs de Brassac-les-Mines, dans un quartier calme,cette maison d'habitation de 131 m2 offre un cadre de vie agréable et fonctionnel, idéal pour une famille. Au rez-de-chaussée, vous profiterez d'un salon-séjour lumineux avec insert, d'une cuisine indépendante ouvrant sur une terrasse, ainsi que d'une salle d'eau et d'un WC. À l'étage, trois grandes chambres spacieuses et lumineuses, dont deux équipées de dressings, un espace bureau ou bibliothèque, une salle de bain et un WC indépendant. Le sous-sol complet comprend une grande buanderie, un espace de stockage et un garage. À l'extérieur, vous profiterez d'un terrain clos et arboré d'environ 2 210 m2, parfait pour les moments en famille ou entre amis. Côté prestations Chauffage au gaz de ville (chaudière récente 6 ans) ,iInsert bois,double vitrage,volets roulants solaires,porte de garage motorisée Maison très bien entretenue, prête à accueillir ses nouveaux propriétaires ! Vous recherchez une maison familiale, fonctionnelle et agréable à vivre ?
A decouvrir au plus vite auprès de Thibault O6.6O.25.29.22 ou Nelly O6 63 96 43 99 Agent commercial DOHM IMMOBILIER BRIOUDE 951 937 275 R.S.A.C. Le Puy en Velay Cette annonce vous est proposée par MARANDON THIBAULT - - NoRSAC: 951937275, Enregistré au Greffe du tribunal de commerce de Le puy en Velay Les informations sur les risques auxquels le bien est exposé sont disponibles sur le site Géorisques : www.georisques.gouv.fr
131 m²
1 603 €
2210 m²
6
3
1
1
2
1
Oui
Consommations énergétiques
Logement économe
228
Logement énergivore (kWhEP/m2/an)
Émissions de gaz à effet de serre
Faible émission de GES
34
Forte émission de GES(kgeqCO2/m2/an)
Contact MARANDON
Contacter gratuitement à l'aide du formulaire ci-dessous.