Honoraires à la charge de l'acquéreur (Prix hors honoraires : 26000 euros).
' MAZARGUES BEBEW '
VENTE DROIT AU BAIL avec Faible Loyer
Une Maison de Ville EN R+1 en Guise de Local Commercial en plein Village de Mazargues 9E Marseille avec double entrées.
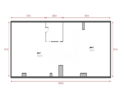
Un local de 113m² exploitable, Un rez de chaussée de 71.65m² traversant totalement refait à neuf avec huisseries sécurité et rideaux métallique.
A l'étage; trois pièces dont deux avec point d'eau et sanitaire réunissant 38.23m² + balcon.
Toutes activités acceptées sur dossier, si activité alimentaire prévoir les travaux d'extractions dans les règles de l'art à la charge exclusive du preneur.
Loyer très raisonnable : 980.00 C.C / mois. PAS DE COPRO ET PAS DE CHARGES
Disponibilité à partir d'AVRIL 2026
' The Agency , l'application du réseau immobilier '
Votre conseiller The Agency : Vaïana POLI Agent commercial (Entreprise individuelle). ' THE AGENCY IMMO, la méthode pour une transaction réussie'0
113 m²
310 €
4
1 sur 1
34.62 %
10.00 € / mois
Oui
Contact The Agency
Contacter gratuitement à l'aide du formulaire ci-dessous.