Honoraires à la charge de l'acquéreur (Prix hors honoraires : 89000 euros).
' MEDICAL CENTER ' MARSEILLE 9E ARD - ROY D'ESPAGNE/SORMIOU
' VENTE DU DROIT AU BAIL avec Déspécialisation'
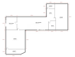
Au sein du Centre médical de Sormiou Marseille 9E victime de sa notoriété. Top emplacement via la rareté d'un local en RDC avec 191m² au total d'exploitation.
Il se compose : D'une pièce principale de 48,82m², d'une pièce annexe de 17,48m², d'un bureau de 8,68m², d'une cuisine de 12,5m², d'un entrepôt de 43,5m² et de sanitaires de 5,3m².
Il y a également un premier garage de 43,42m² et un second de 10,95m².
Les autres activités en pied d'immeuble sont PHARMACIE & LABORATOIRE.
Parking pour recevoir la patientèle
Activités médicales et/ou paramédicales souhaitées ( Attention hors celle présente sur le centre médical) afin de conserver une synergies entres les praticiens.
' The Agency, l'application du réseau immobilier..'
Votre conseiller The Agency : Morgan BERTHOLET Agent commercial (Entreprise individuelle) RSAC 880 432 398. ' THE AGENCY IMMO, la méthode pour une transaction réussie'0
191 m²
518 €
3
11.24 %
02/03/2026
45.00 € / mois
2005
Contact The Agency
Contacter gratuitement à l'aide du formulaire ci-dessous.