Nous vous proposons ce bel appartement 3 pièces de 61,84 m2 habitables (66,93 m2 au total avec terrasse), situé à Eschau, dans un environnement calme et résidentiel, idéal pour une vie de famille ou un investissement.
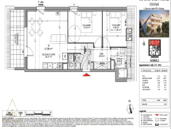
Des espaces bien pensés : Situé au 2e étage, ce bien se compose de : Une pièce de vie lumineuse de 26,57 m2 avec séjour et cuisine ouverte, offrant un espace convivial et fonctionnel, avec un accès direct à une terrasse de 9,09 m2, idéale pour profiter des beaux jours. Deux chambres confortables de 12,05 m2 et 9,48 m2, parfaitement adaptées pour une famille, un bureau ou une chambre d'amis. Une salle de bain fonctionnelle ainsi qu'un WC séparé, apportant un réel confort au quotidien. Un dégagement optimisant la circulation et permettant une vraie séparation entre l'espace jour et l'espace nuit.
Les plus de cet appartement : Terrasse agréable de plus de 9 m2 Séparation espace jour / nuit Chauffage au sol collectif : confort thermique optimal Volets roulants électriques Menuiseries PVC double vitrage Salle de bain équipée Ventilation mécanique contrôlée (VMC) Logement conforme aux dernières normes énergétiques et phoniques Deux places de stationnement en sous-sol incluses
Un emplacement pratique et attractif : Environnement calme et résidentiel Proximité des commodités Accès rapide aux axes principaux À quelques minutes de Strasbourg Cadre de vie verdoyant et agréable
Prix : 297 700 EUR FAI (Honoraires à la charge du vendeur)
Contactez dès maintenant votre conseiller César AVALOS au O6 13 49 64 61 pour organiser une visite et découvrir cette belle opportunité !
OUARTIMMO Au départ de vos projets
Bien en copropriété (en cours de création). Les informations sur les risques auxquels ce bien est exposé sont disponibles sur : www.georisques.gouv.fr
61.84 m²
4 814 €
9 m²
26 m²
3
2
1
1
2026
1 (9 m²)
Oui
2
Oui
Consommations énergétiques
Logement économe
79
Logement énergivore (kWhEP/m2/an)
Émissions de gaz à effet de serre
Faible émission de GES
7
Forte émission de GES(kgeqCO2/m2/an)
Contact AVALOS César
Contacter gratuitement à l'aide du formulaire ci-dessous.