APPARTEMENT T2 A VENDRE PROCHE HOPITAL D'ABBEVILLE
Abbeville 80100
0
Honoraires à la charge de l'acquéreur (Prix hors honoraires : 80000 euros).
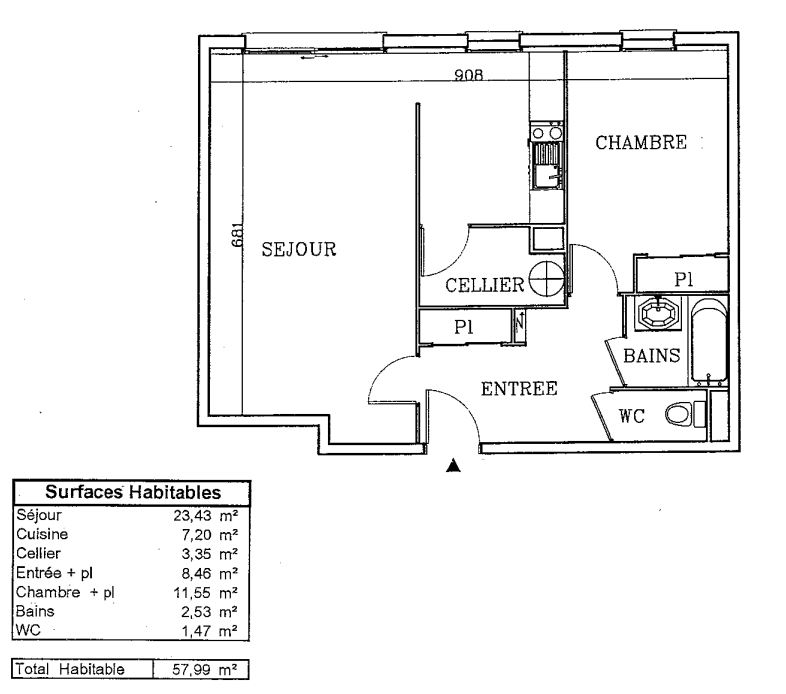
L'immobilier du centre vous propose à la vente, à proximité du centre ville d'Abbeville un appartement renové de 49m2. Ce T2 au 2ème étage sans ascenseur actuellement loué dans un petit immeuble en briques se divise : en une belle piéce principale avec coin cuisine, une salle de douche avec WC et une chambre. L'appartement est chauffé par des radiateurs électriques récents. Idéal pour investisseur, bien vendu loué. Les infomations sur les risques auxquels ce bien est exposé sont disponibles sur le site www.georisques.gouv.fr.
49 m²
1 763 €
36 m²
2
1
1
1
8.00 %
Consommations énergétiques
Logement économe
293
Logement énergivore (kWhEP/m2/an)
Émissions de gaz à effet de serre
Faible émission de GES
9
Forte émission de GES(kgeqCO2/m2/an)
Contact VANTOURNOUT ANTOINE
Contacter gratuitement à l'aide du formulaire ci-dessous.