Aubagne rare à la vente , quartier Les Passons , rez de vil
Aubagne 13400
0
Honoraires à la charge du vendeur.
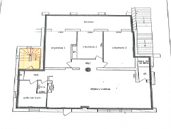
Sur la commune d'Aubagne dans le quartier des Passons, Anne-Carolyn vous présente un joli rez de villa traversant de 110 M2 sur une parcelle de terrain d'environ 200M2 exposée Sud en copropriété. Cet appartement se situe dans un lotissement au calme , proche de toutes les commodités et des transports en commun. Il se compose d'une cuisine ouverte avec une grande pièce de vie lumineuse d'environ 55 m2 donnant vu sur son jardin, d'un cellier, de 3 grandes chambres dont une avec coin dressing, d'une grande salle de bains et d'un wc séparé. Coté jardin vous pourrez profiter de la végetation et du calme ! Pour votre confort deux stationnements sont à votre disposition ainsi qu'une grande cave de 80 M2. A visiter sans tarder...Bien soumis à la copropriété. Nombre de lots :2. Bien en lotissement .Nombre de lots: 40. Charges mensuelles 45 EUR. Pas de procédure en cours. Taxe foncière : 1600 EUR. DPE en cours de réalisation. Annonce rédigée par un mandataire indépendant. Votre contact : Anne-Carolyn Misrachi: 06.22.04.84.56- acmisrachi.expertimo@gmail.com- ESTIMATION GRATUITE- HONORAIES REDUITS- DISPONIBLE 7JRS SUR 7. Cette annonce vous est proposée par Anne Carolyn Misrachi - - NoRSAC: 832905624, Enregistré à Greffe du tribunal de commerce de MARSEILLE - Annonce rédigée et publiée par un Agent Mandataire -
110 m²
2 964 €
55 m²
200 m²
4
3
1
1
1965
Oui
2
1
Oui (2 lots)
Consommations énergétiques
Logement économe
264
Logement énergivore (kWhEP/m2/an)
Émissions de gaz à effet de serre
Faible émission de GES
3
Forte émission de GES(kgeqCO2/m2/an)
Contact MISRACHI Anne Carolyn
Contacter gratuitement à l'aide du formulaire ci-dessous.