Côte d'Or : Bâtisse bourguignonne de 450m2 dont 260 m2 réno
Sainte-Colombe-sur-Seine 21400
0
Honoraires à la charge du vendeur.
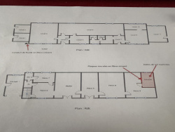
Proche de Châtillon sur Seine en Côte d'Or , ville de 6000 habitants avec toutes les commodités (hôpital , médecins , commerces ,collège, lycée , vies associative et culturelle ) se trouve un ensemble de 700m2 de surface habitable (avec annexes) dont 260m2 de plain pied renové et adapté pour personne à handicap. A voir pour créer une maison de retraite de village ,,,,,,,,,,,, Châtillon sur Seine se situe à 1H de DIJON , de TROYES (CHAMPAGNE) de L'YONNE ( CHABLIS) ainsi que des sites d'ALESIA, du vase de VIX ; proche des magnifiqures forêts et du parc national. Je vous propose à la vente un bien assez rare avec beaucoup d'opportunités , soit en habitation avec des compléments de ressources (annexes) , soit un lieu pour des personnes à mobilité réduite avec le plain pied de 260m2 , ou encore une maison de retraite avec des appartements privés ou autres. Anciens bureaux composés d'un bâtiment central avec deux unités sur les côtés (voir plan) de 260 m2 de plain pied entiérement rénové avec goût.et deux étages portant la surface habitable possible à 450m2 environ.. Ce bâtiment central se compose d'une entrée de 5,5m2 ( placards), un bureau donnant accès à un grand salon-salle à manger de 65m2 et une cuisine moderne. De part et d'autre de cette entrée : un couloir à gauche avec un grand dressing qui dessert 4 chambres spacieuses de 13,46m2 - 15,91m2 - 16,39m2-16,49m2 ( parquet flottant au sol) ,une buanderie, un toilette, une salle de bain ;et un couloir à droite avec un grand placard de rangement qui dessert, une suite parentale de 28m2 , une piéce (tableau électrique) ainsi qu'une chambre de 25,5m2 ; A l'étage un palier s'ouvre sur quatre piéces , un cagibi, et deux greniers à rénover entièrement.(voir plan).( Surface environ 110m2) Au deuxième étage se trouve un grenier.
Cave et local à chaudière .
A l'extérieur : deux bâtiments de 100m2 environ avec eau et électricité ; Le premier se compose de 11 ipièces avec des toilettes, douche (voir plan); Le second comporte cinq pièces ainsi qu' un atelier , un garage. et un grenier( Voir plan). Double garage de 50 m2 environ avec portes élécrtiques.(plan). Double vitrage au rdc de 260m2. Volets manuels. Chaudière à granules avec un silo (consommation annuelle 5 tonnes soit 2000 euros) Classe D Electricité neuve sur le RDC Toitures des bâtiments en bon état. TF 2231 euros.
Je vous attends pour découvrir ce bien .
A vous de saisir cette magnifique occasion d'acquérir 700m2 à un prix trés compétitif...
260 m²
1 142 €
13
6
1948
2
1
Consommations énergétiques
Logement économe
192
Logement énergivore (kWhEP/m2/an)
Émissions de gaz à effet de serre
Faible émission de GES
5
Forte émission de GES(kgeqCO2/m2/an)
Contact EMD FRANCE - IDIMMO SPATARO Anuzio
Contacter gratuitement à l'aide du formulaire ci-dessous.