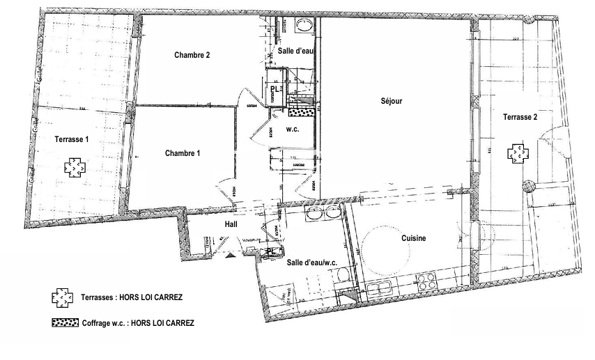
Duplex T3/4 avec terrasse XXL Le Brûlat (Var) Vivez entre mer & nature dans un cadre paisible et recherché ! À VENDRE Magnifique Duplex T3 de 72 m2 avec terrasse de 47,63 m2 Situé au 1er étage d'une petite copropriété intimiste de 3 logements, cet appartement offre luminosité, confort et espace au coeur du Brûlat Le Castellet. Ici, la sérénité se marie avec la proximité des plages et des commodités. Les atouts de ce bien : ? Duplex moderne et fonctionnel (72 m2) ? Grande terrasse de 47,63 m2 pour vos repas et moments de détente ? Parking privatif inclus ? Environnement calme et verdoyant ? Idéal résidence principale, secondaire ou investissement locatif Le Brûlat Var (83) : un cadre rare, entre vignes, collines et Méditerranée Contactez-nous dès maintenant au 06 71 43 55 13 pour organiser une visite. Les informations sur les risques auxquels ce bien est exposé sont disponibles sur le site Géorisques : www.georisques.gouv.fr
77 m²
6 091 €
34 m²
3
2
2
2
1
1
Oui
Oui
Oui
Contact AVP IMMO
Contacter gratuitement à l'aide du formulaire ci-dessous.