F3 de 70m2 ENTIÈREMENT RÉNOVÉ (2025) et Parking - Vue Puy d
Clermont-Ferrand 63000
0
Honoraires à la charge du vendeur.
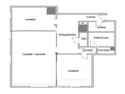
F3 de 70m2 ENTIÈREMENT REFAIT À NEUF (2025) et Parking L'agence JAUDE Immobilier vous propose ce F3 de 70m2 vendu ENTIÈREMENT REFAIT À NEUF (2025) et Parking -Idéalement situé à Clermont-Ferrand limite Chamalières - Quartier GALAXIE -BEAULIEU. L'appartement au 12ème étage avec ascenseur bénéficie d'une double exposition. Une spacieuse entrée avec un grand dressing (branchement pour Machine à laver) dessert une très agréable pièce de vie de 27 m2 avec 1 cuisine SCHMIDT toute équipée. La partie nuit se compose de 2 chambres de 10 m2 + 1 DRESSING, 1 salle d'eau avec douche à l'italienne et d'1 WC séparé. AUCUNS TRAVAUX À PRÉVOIR. 1 PLACE DE PARKING dans un garage sécurisé (24/24) complète ce bien. La résidence dispose d'espaces verts communs et aire de jeux protégés. Quartier résidentiel très recherché pour sa proximité de toutes commodités. Les transports en communs sont au pieds de la résidence. La place de Jaude, ainsi que le centre de Chamalières sont à moins de 15min à pieds. RÉNOVATION COMPLÈTE avec des matériaux QUALITATIFS (sols, murs, electricité, plomberie, cuisine et salle d'eau). Double vitrage PVC.
Chauffage collectif par chaudière Gaz. Classe énergétique : C (Nouvelle réglementation) .
Biens soumis au statut de la copropriété:
Nombre de lots : 160. Tantièmes de copropriété : 0,645%. Charges annuelles : 2 254EUR (soit environ 188EUR/mois), incluant les charges courantes de copropriété, le chauffage, l'eau froide et chaude, l'entretien des espaces verts + 424 EUR/an pour le box couvert.
Pas de procédure en cours.
Taxe foncière : 1300EUR.
Cet appartement réunit confort, modernité et une vue imprenable dans un quartier recherché. Le prix indiqué comprend les honoraires d'agence à la charge du vendeur. Une question, Une visite ? N'hésitez pas à m'appeler. Véronique HUTIN - 06 86 17 11 33 Associée-Négociatrice RSAC CLERMONT FD sous le no 789 615 341 et auprès de la CCI du Puy de Dôme sous le no ADC63022023000000144 Les informations sur les risques auxquels ce bien est exposé sont disponibles sur le site Géorisques : www.georisques.gouv.fr
70.62 m²
2 563 €
5 m²
27 m²
3
2
1
1
12 sur 15
188 € / mois
1975
Ouest
Oui
1
1
Oui
Oui
Oui
Oui (160 lots)
Consommations énergétiques
Logement économe
128
Logement énergivore (kWhEP/m2/an)
Émissions de gaz à effet de serre
Faible émission de GES
23
Forte émission de GES(kgeqCO2/m2/an)
Contact HUTIN Véronique
Contacter gratuitement à l'aide du formulaire ci-dessous.