FONTENAY LE PESNEL MAISON A LOUER DE 6 PIECES AVEC 4 CHAMBR
Fontenay-le-Pesnel 14250
0
Les charges de location sont un remboursement annuel par le locataire.
La part des honoraires pour la réalisation de létat des lieux de ce bien est de 345 euros.
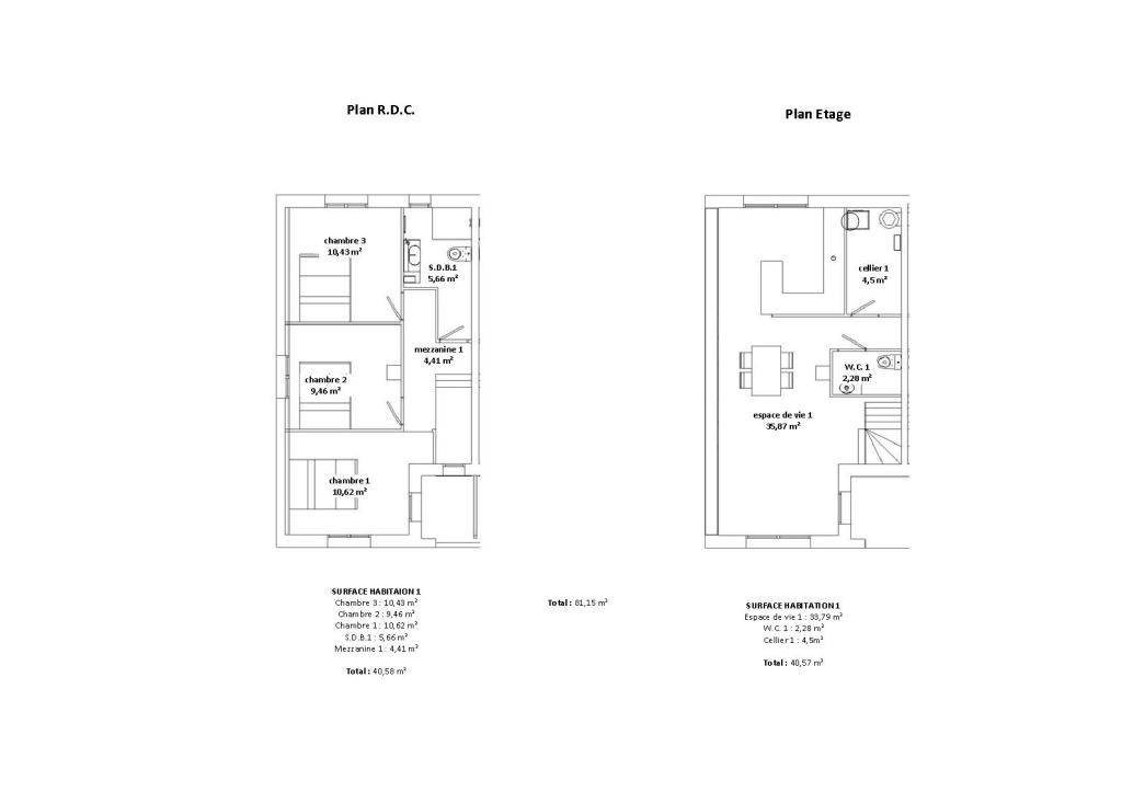
SECTEUR CAEN OUEST - Commune de FONTENAY LE PESNEL, 7 rue des Forges, maison à louer de 6 pièces de 115m2 habitables comprenant une entrée avec placard, un séjour salon et cuisine ouverte, un cellier, 4 chambres à l'étage, salle de bains et douches, 2 wc, un garage et un jardin. Chauffage individuel électrique. Disponible à partir 09/01/2026. Honoraires à la charge du locataire: 1265EUR ttc dont 345EUR pour l'état des lieux. Dépôt de garantie: 920EUR. DPE: classe D. Montant estimé des dépenses annuelles d'énergie: entre 1480EUR et 2030EUR. Estimation réalisée à partir des prix énergétiques de référence de l'année 2021. Pour candidater, déposez votre dossier sur cette annonce depuis notre site internet cabinetquesnee Les informations sur les risques auxquels ce bien est exposé sont disponibles sur le site georisques.gouv.fr. QUESNEE IMMOBILIER, gestionnaire locatif à CAEN, 02.31.34.08.50
115 m²
6
4
1
2
1265 %
08/01/2026
2010
Sud
1
1
Consommations énergétiques
Logement économe
208
Logement énergivore (kWhEP/m2/an)
Émissions de gaz à effet de serre
Faible émission de GES
6
Forte émission de GES(kgeqCO2/m2/an)
Contact Cabinet Quesnee Immobilier
Contacter gratuitement à l'aide du formulaire ci-dessous.