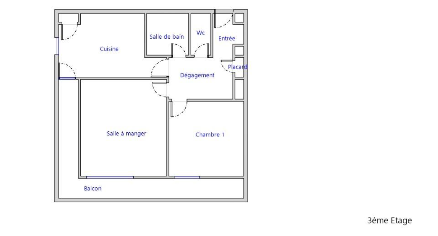
Un emplacement bien positionné : Dans une allée soignée occupée majoritairement par des copropriétaires, cet appartement est situé dans une copropriété fermée et sécurisée, qui donne directement sur un parc pour enfants. Idéal pour une vie de famille. Ce que vous allez adorer :Ancien T5 transformé en T4 de 83 m2, traversant, bien agencé et lumineux grâce à son exposition sud-ouest.Les propriétaires ont toujours pris soin de leur bien, ce qui se ressent dans l'état général de l'appartement. Confort & prestations :
Volets roulants manuels
Porte blindée 2 points pour plus de sécurité
Fibre optique installée
Quelques travaux de modernisation à prévoir pour le remettre au goût du jour
Atouts supplémentaires :
Balcon-loggia agréable accessible depuis le séjour
Cave privative de 4 m2
Garage fermé de 14 m2 en sus à 15 000 EUR
Un bien à fort potentiel, parfait pour une résidence principale ou un investissement bien situé. À visiter sans tarder !
Les informations sur les risques auxquels ce bien est exposé sont disponibles sur le site Géorisques :www.georisques.gouv.fr Cette annonce a été publiée par un agent commercial. Pour tous renseignements complémentaires, descriptif technique complet du bien et visite,contactez HASSIBA HAIMICHE au 06 14 17 67 47.Vous avez un projet ? Estimation offerte | Achat Vente Location Consultez l'ensemble de nos annonces et visites virtuelles sur www.visioimmo.fr
83 m²
1 145 €
8 m²
16 m²
5
3
1
1
5 sur 15
1974
Sud
Ouest
1 (8 m²)
Oui
Oui
1
1
Oui
Oui
Consommations énergétiques
Logement économe
199
Logement énergivore (kWhEP/m2/an)
Émissions de gaz à effet de serre
Faible émission de GES
17
Forte émission de GES(kgeqCO2/m2/an)
Contact Haimiche
Contacter gratuitement à l'aide du formulaire ci-dessous.