Située à Condé 400, sur la commune de Saint-Pierre, cette maison spacieuse de type T8 est idéale pour un projet familial ou un investissement locatif. Vous bénéficiez ici d'un emplacement stratégique, à proximité immédiate des commerces, des écoles et de la 4 voies, tout en profitant d'un environnement résidentiel calme.
Les surfaces
160 m² habitables.
209 m² de surface plancher (garage, terrasse couverte et annexes ? hors loi Carrez)
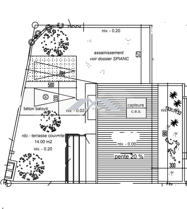
Terrain clos et arboré d'environ 500 m²
La maison se compose de :
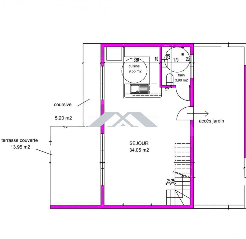
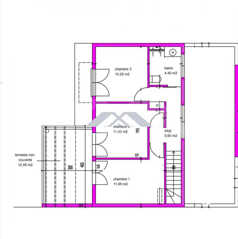
8 pièces au total, dont 5 chambres : 3 au rez-de-chaussée et 2 à l'étage
Un séjour lumineux
Une salle d'eau au rez-de-chaussée
Une salle de bain à l'étage
De nombreux rangements intégrés
Une cuisine extérieure couverte, idéale pour les repas partagés
Un garage fermé
Les extérieurs
Le jardin est arboré d'arbres fruitiers, agréable et propice à la détente.
L'assainissement se fait par fosse septique.
Les + de ce bien :
Secteur prisé de Saint-Pierre
Proximité immédiate des commodités et des grands axes
Parfait pour une grande famille
Fort potentiel pour un investisseur, avec possibilité de créer un projet de colocation (5 chambres, espaces communs, cuisine extérieure)
Intéressé(e) par une visite ou besoin d'informations complémentaires ?
Je suis à votre disposition.