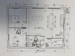
Votre construction d'une maison de plain-pied évolutive sur Meslay du Maine comprenant une entrée, séjour/ salon avec cuisine ouverte équipée, deux chambres avec parquet, salle d'eau avec douche, meuble vasque et WC suspendu, un sellier. Chauffage, rafraichissement et eau chaude produite par une pompe à chaleur. Un procédé novateur axé sur l'économie d'énergie et le confort été comme hiver. Maison éco-responsable utilisant en majeure partie des produits biosourcés. Conforme aux normes thermiques RE 2020 (Classe A++). Comble aménageable. Non compris: Frais de notaire, taxes locales, taxe urbanisme, taxe d'aménagement, branchements Photos non contractuelle D'autres terrains disponibles sur demande.
75.96 m²
2 435 €
38 m²
3
2
1
1
2023
Sud
Ouest
2
Oui
Consommations énergétiques
Logement économe
42
Logement énergivore (kWhEP/m2/an)
Émissions de gaz à effet de serre
Faible émission de GES
1
Forte émission de GES(kgeqCO2/m2/an)
Contact MERCIER Cyprien
Contacter gratuitement à l'aide du formulaire ci-dessous.