? Plateau lumineux de 44 m² avec terrasse de 24 m² ? Idéal investisseur ou résidence senior
Sarlat-la-Canéda 24200
0
Imaginez-vous prendre votre café sur une terrasse baignée de soleil, en rez-de-jardin, à deux pas du centre historique de Sarlat.
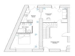
Ce plateau de 44 m² offre un potentiel rare : créer un T2 spacieux et lumineux, moderne et parfaitement situé, dans un immeuble entièrement rénové.
Toiture, menuiseries et parties communes sont neuves : tout le gros ?uvre est déjà fait.
Il ne vous reste qu'à concevoir l'aménagement intérieur selon vos envies et vos besoins.
Un bien solide, simple à rénover et inspirant à habiter.
Ses atouts :
Terrasse plein sud de 24 m², rare à Sarlat
Rez-de-jardin facile d'accès, idéal pour une résidence principale, secondaire ou un projet locatif
Toiture, menuiseries et parties communes neuves
Très lumineux, calme, à proximité immédiate du centre historique
Images de synthèse et plans d'aménagement disponibles
Un bien clé en main dans son potentiel, qui offre le parfait équilibre entre confort, accessibilité et rentabilité.
Les investisseurs y verront une opportunité simple et efficace ; les particuliers, un lieu de vie paisible et lumineux.
Emplacement : quartier calme et recherché, à quelques minutes à pied du centre.
Idéal pour : investisseur en courte durée ou particulier souhaitant un plain-pied confortable et pratique.
44 m²
1 580 €
3
1
1
Oui
Consommations énergétiques
Logement économe
0.01
Logement énergivore (kWhEP/m2/an)
Émissions de gaz à effet de serre
Faible émission de GES
0.01
Forte émission de GES(kgeqCO2/m2/an)
Contact MABRIK IMMO AGENCE
Contacter gratuitement à l'aide du formulaire ci-dessous.