Programme neuf, Apt T3 en R+2, Résidence LE BELVEDERE DU FO
Fort-de-France 97200
0
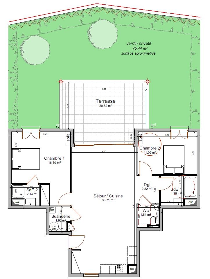
ACS IMMOBILIERS vous propose dans ce beau programme neuf, Résidence Belvédère du Fort, cet appartement T3 en R+2 comprenant : un hall d'entrée, un séjour/cuisine, une chambre, une salle de bain avec WC, une terrasse et un parking extérieur. Lové dans le quartier CLAIRIERE- BELLEVUE, LE BELVEDERE DU FORT surplombe la baie, dévoilant un panorama splendide sur FORT DE FRANCE. Ce havre de paix agrémenté d'une végétation abondante source de fraîcheur comporte 3 bâtiments. Leur architecture fait écho aux collines de la ville par sa composition hétéroclite multiniveaux. Les Façades bardées de bois jouent la sobriété, allant du gris au blanc cassé en passant par le jaune ou le beige. Coiffés d'une toiture débordante, les bâtiments comportent 67 logements au total (du studio au T4) tous définis dans les règles de l'architecture bioclimatique. Leur orientation permet une ventilation naturelle; ils sont tous dotés d'une varangue aux dimensions généreuses et habillées de claustras métalliques. La verdure omniprésente règne autour de la propriété et en coeur d'îlot , aérant des zones d'ombrage et de fraîcheur végétalisées. Les résidents disposent de places de stationnement en surface et de garages fermés en sous-sol ainsi que de locaux vélos. A proximité du centre ville, proche des navettes maritimes et des infrastructures scolaires, cette résidence offre un cadre de vie résolument privilégié. Garanties : Gararantie décennale Garantie de parfait achèvement Dommages ouvrage
Prix de vente : 350 00EUR HAI. Frais de notaire réduis et garantie décennale. Défiscalisation en Loi Pinel DOM et Girardin IS. Les informations sur les risques auxquels ce bien est exposé sont disponibles sur le site Géorisques : www.georisques.gouv.fr L'agence ACS IMMOBILIERS est votre partenaire idéal pour acheter ou vendre un appartement à FORT-DE-FRANCE. Spécialisée dans la vente d'appartements à FORT-DE-FRANCE, elle diffuse quotidiennement des annonces immobilières à FORT-DE-FRANCE.
67.6 m²
5 178 €
30 m²
3
2
1
1
2025
Sud
Est
Oui
1
Contact
Contacter gratuitement à l'aide du formulaire ci-dessous.