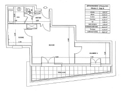
GRAND F2 RECENT (2009) A LA POINTE DU LAC EN DERNIER ETAGE AVEC TERRASSE DE 11M2. Beau séjour et chambre ouvrant sur terrasse, cuisine équipée (four, plaques et hotte), entrée avec placard, salle de bains, wc séparé. Parking en sous-sol. Métro Creteil Pointe du lac à proximité. Proximité lac, transports, écoles et commerces. Le quartier de la Pointe du Lac à Créteil offre plusieurs avantages, notamment :
Proximité avec le Lac de Créteil et espaces verts : Le quartier est situé à l'extrémité sud de l'Île de Loisirs de Créteil, offrant un accès privilégié au lac et à ses 60 hectares de verdure. C'est un véritable 'poumon vert' avec de nombreux parcs et espaces verts, propices à la détente, aux loisirs et aux activités de plein air (promenades, observations d'oiseaux, parcours sportifs).
Excellente desserte par les transports en commun : Le quartier est le terminus de la ligne 8 du métro parisien ('Pointe du Lac'), ce qui permet un accès rapide à Paris (environ 20 minutes).
Réseau de bus étendu : Plusieurs lignes de bus desservent le quartier (117, 281, 393, 423, 428, N32 pour la nuit), offrant des liaisons vers d'autres quartiers de Créteil et les villes environnantes.
Proximité des axes routiers majeurs : Le quartier est bien connecté aux principales autoroutes (A4, A6, A86) et routes départementales (D1, D19, D86, N6), facilitant les déplacements en voiture.
Proximité du centre commercial Créteil Soleil : L'un des plus grands centres commerciaux d'Île-de-France, Créteil Soleil, est facilement accessible depuis le quartier. Il propose plus de 200 commerces, un hypermarché, des restaurants et divers services.
En résumé, la Pointe du Lac à Créteil est un quartier qui combine un environnement naturel agréable avec une excellente connectivité aux transports, un accès facile à de nombreuses commodités et services, et un dynamisme lié à son développement récent.
49.06 m²
4 484 €
22 m²
2
1
1
1
3 sur 3
243 € / mois
2009
Sud
Oui
1
Oui
1
Oui
Oui (62 lots)
Consommations énergétiques
Logement économe
171
Logement énergivore (kWhEP/m2/an)
Émissions de gaz à effet de serre
Faible émission de GES
13
Forte émission de GES(kgeqCO2/m2/an)
Contact VAJOU
Contacter gratuitement à l'aide du formulaire ci-dessous.