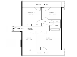
BEAU F3 AVEC GRANDE CUISINE EQUIPEE ET BALCONS - PROCHE DE L'EGLISE, DE LA RUE PIETONNE ET DE SES COMMERCES. Très bien agencé: entrée avec placards, séjour avec grand balcon (6,7m2) exposé Ouest, cuisine aménagée et équipée (four, plaque, hotte, lave-vaisselle), 2 chambres dont une grande avec placard (chacune ouvrant sur un balcon de 7,7m2 exposé Est), salle de bains, wc séparé. Cave en sous-sol. Possibilité de location d'un box dans la résidence. Secteur privilégié proche de la rue piétonne (petits commerces). Résidence de bon standing très bien entretenue. A 12 min à pied du métro Creteil Université et 7 min du TVM. quartier résidentiel calme tout en étant très proche du centre-ville de Créteil. Cela signifie que vous bénéficiez du meilleur des deux mondes : la tranquillité chez vous et un accès facile à tout ce dont vous avez besoin.
Commerces et services : Vous êtes à quelques pas de nombreux commerces de proximité, tels que des boulangeries, pharmacies, banques et petits supermarchés.
Établissements scolaires : Pour les familles, la présence d'écoles maternelles, primaires et de collèges à proximité est un atout majeur, facilitant la vie quotidienne.
63.82 m²
4 152 €
14 m²
28 m²
3
2
1
1
2 sur 6
318 € / mois
1975
Sud
2 (14 m²)
Oui
Oui
Oui (114 lots)
Consommations énergétiques
Logement économe
268
Logement énergivore (kWhEP/m2/an)
Émissions de gaz à effet de serre
Faible émission de GES
58
Forte émission de GES(kgeqCO2/m2/an)
Contact VAJOU
Contacter gratuitement à l'aide du formulaire ci-dessous.