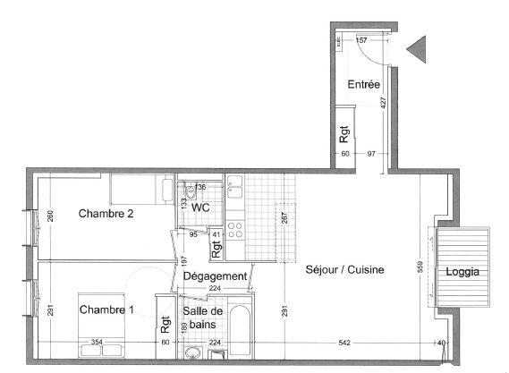
JOUE LES TOURS - CENTRE proche tramwayIdéalement situé dans un quartier résidentiel du centre-ville, au pied des commerces et des transports en communs tel que le tram, beau T3 entièrement refait avec cave.Cet appartement lumineux se compose d'une entrée donnant sur le séjour, cuisine ouverte neuve aménagée et équipée (plaques, hotte, four, emplacement pour machine à laver et niche pour micro-ondes), un couloir avec placard desservant les wc indépendants, la salle de bains neuve et les 2 chambres avec placards.Le plus : une cave et stationnement gratuit au pied de la résidence.Disponible dès maintenantHonoraires : 626.23?Dépôt de garantie : 645.00?
56.93 m²
3
2
Oui
Contact ERA > ERATOURAINEIMMOBILIER(S)
Contacter gratuitement à l'aide du formulaire ci-dessous.