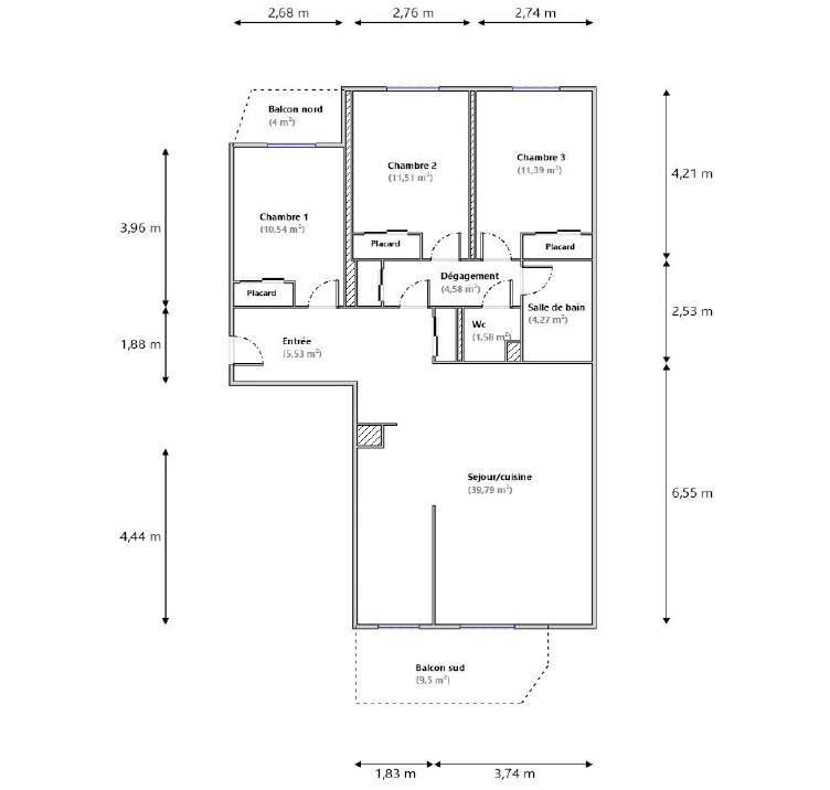
Votre agence immobilière à Nice (STONE Victoria 06.64.96.99.87) vous fait découvrir cet appartement d'exception de 64 m² sur les hauteurs de Raoul Dufy. Au 3ème et avant dernier étage d'une résidence récente de 2019 et offrant une vue mer panoramique et imprenable, cet appartement est idéal pour une vie confortable et agréable. La cuisine, faite sur mesure avec des équipements de haute qualité, s'ouvre sur un séjour lumineux de 25 m², exposé sud-ouest. Avec ses deux chambres et WC indépendant, vous apprécierez également la salle d'eau moderne et la climatisation réversible. Pour plus de confort, l'appartement est équipé d'une domotique et contrôle à distance l'alarme, les volets roulants, stores bannes, l'éclairage et la climatisation. À l'extérieur, vous pourrez vous détendre sur une belle terrasse de 10 m² en profitant de la vue magnifique de la baie de Nice jusqu'au Cap D'Antibes avec l'Esterel en arrière plan.Ce bien comprend également un garage fermé, et la résidence est équipé de la fibre optique. Sécurisée et encore sous garantie décennale, vous offrant ainsi tranquillité d'esprit. Situé dans le quartier prisé de la Lanterne à Nice, vous serez à proximité de plusieurs établissements scolaires tels que le Collège Raoul Dufy, l'École les Magnolias, et l'École primaire La Lanterne, parfait pour les familles. Des commodités a proximité immédiate en bas de l'avenue et accès rapide sur les axes principaux routiers.Ne manquez pas cette opportunité rare, contactez moi, Victoria Stone ( 06.64.96.99.87/ victoria.stone@eraimmo.fr) de l'agence ERA COTE D'AZUR IMMOBILIER pour organiser une visite !
64 m²
7 734 €
3
2
1
Oui
Oui (65 lots)
Contact ERA > Victoria STONE
Contacter gratuitement à l'aide du formulaire ci-dessous.