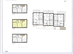
Nous vous proposons à l'achat, une maison neuve 4 pièces 105.84 m², vente en l'état futur d'achèvement (VEFA livraison prévue fin 2026), idéalement située à proximité de la plage et des commerces de Stella plage.Elle se compose au rez de chaussée:- Un entrée avec placard.- Une pièce de vie de 47 m² avec espace cuisine ouverte et salon/séjour avec terrasse.- Un WC indépendant adapté PMR. A l'étage:- Un palier- Deux chambres spacieuses avec placard.- Une chambre adaptée PMR.- Une salle d'eau adaptée PMR.- Un Wc séparé.Construite sur une parcelle de 210 m² avec carport et une place de parking.Les informations sur les risques auxquels ce bien est exposé sont disponibles sur le site Géorisques : www.georisques.gouv.frPour toutes informations ou pour visiter ce bien, veuillez contacter ERIC LAMAREau 06 15 36 31 31 : MAIL eric.lamare@eraimmo.frAgent commercial - N° RSAC 432 189 769 EIRéférence annonce: 758Stella-Plage est une commune française située dans le département du Pas-de-Calais, en région Hauts-de-France. C'est une station balnéaire du sud de la Côte d'Opale , située entre Le Touquet Paris Plage et Berck Plage.Contactez votre agence Immobilière ERA Agence du Casino, spécialiste de l'immobilier sur les villes de Berck, Merlimont, Rang du Fliers, Verton, Groffliers, Waben, Conchil le Temple, Airon Notre Dame, Airon Saint Vaast, Wailly Beaucamp, Lepine, Fort Mahon, Quend, Tigny-noyelle, Villers sur authie, Nampont, Nempont st firmin, Colline beaumont.
105.84 m²
4 507 €
210 m²
4
3
2
Oui
Oui (21 lots)
Contact ERA > Eric LAMARE
Contacter gratuitement à l'aide du formulaire ci-dessous.