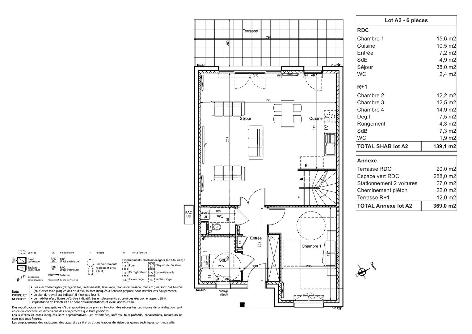
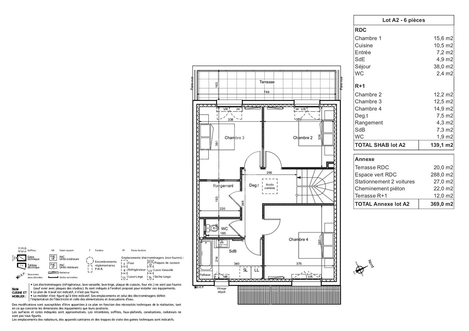
L'agence A la Clef des Champs vous propose sur la charmante commune de Saulx les Chartreux, petit village situé à 25minutes de Paris, en centre ville, une maison sur une parcelle de 340m² environ. . Composée de 6 pièces vous serez séduits par les 139m² habitables comprenant au rez de chaussée : entrée, cuisine US donnant sur un séjour double de 88m² environ ouvrant sur le jardin et une terrasse, une chambre de 15m² environ, salle d'eau et wc. A l'étage : trois belles chambres de 12,2 m², 12,8m² et 14,9m² ainsi qu'une salle de bains et un wc indépendant. A l'extérieur deux emplacements pour voiture. Les écoles primaires ainsi que la rue commerçante de Saulx sont à moins de 10 minutes à pieds. L'ensemble du dossier est disponible en agence. Le prix affiché comprend les honoraires d'agence à la charge de l'acquéreur de 5%.Le prix hors honoraires est de 490 000 euros.L'agence ERA - A La Clef des Champs a fait le choix de rédiger ses mandats de vente avec les honoraires à la charge de l'acquéreur pour plus de transparence envers ses clients mais surtout afin de leur éviter un surplus de droits de mutations (appelés communément frais de notaires). En effet, lorsqu'ils sont à la charge de l'acquéreur, les honoraires ne sont pas soumis aux taxes.
L'Etat des Risques et Pollution peut être consulté sur https://www.georisques.gouv.fr
139 m²
3 701 €
340 m²
6
4
Contact ERA > ERAIMMOBILIERALACLEFDESCHAMPS
Contacter gratuitement à l'aide du formulaire ci-dessous.