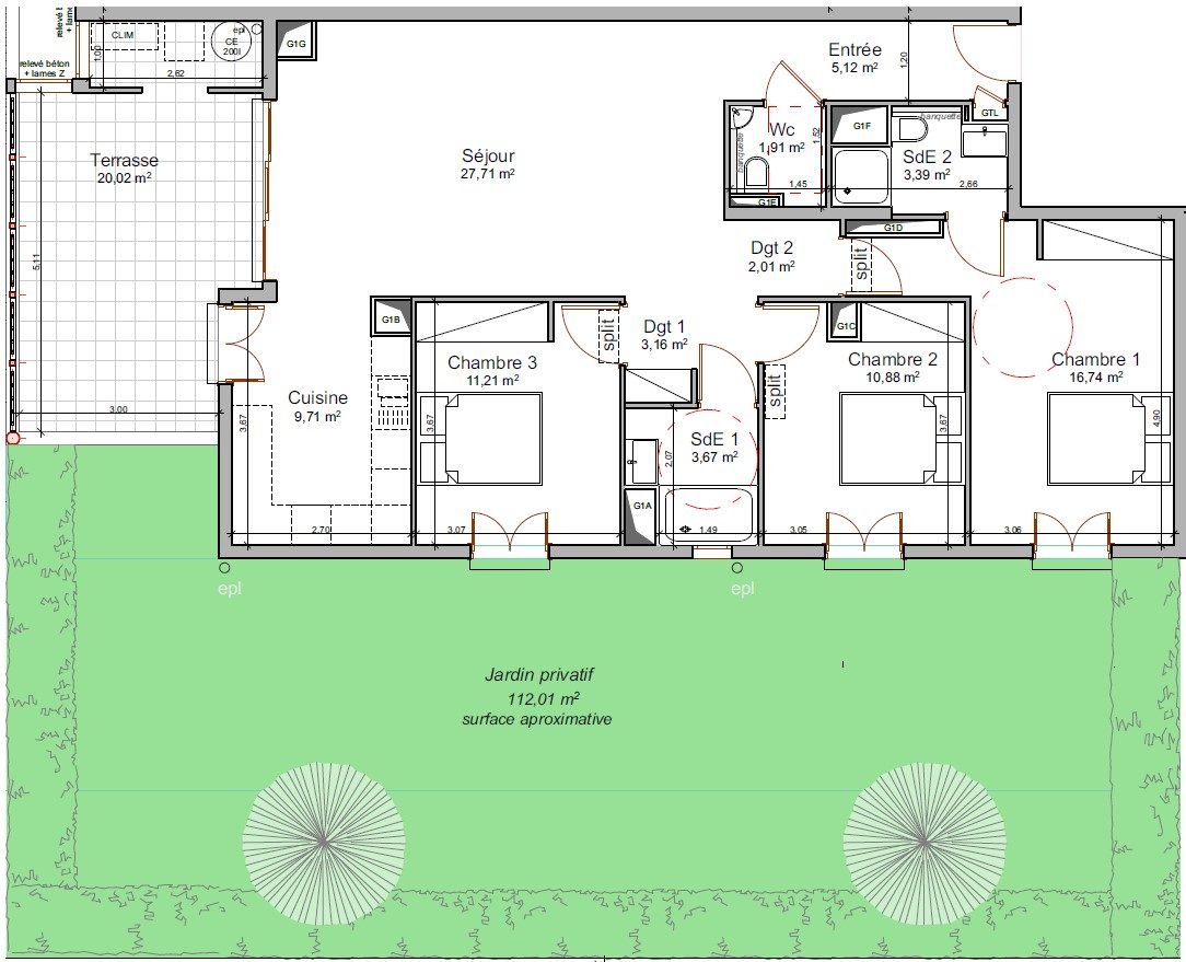
À vendre un appartement 4 pièces R+3 sur Fort de FranceSitué dans une toute nouvelle résidence "Eden Parc" en cours de construction : calme et sécurisée de 91 logements, ce 4 pièces au dernier étage est idéalement localisé, à seulement 6 minutes à pied du CHU et de la MFME, et à 1 minute des transports en commun. Spacieux, lumineux et fonctionnel, il est parfait pour un étudiant, un jeune actif ou un investissement locatif.L' appartement est composé :3 Chambres climatisées avec placard intégré, un dressingPièce de vie lumineuse, offrant de multiples possibilités d'aménagement2 Salle d'eau , un wc indépendant moderne et bien agencéeTerrasse de 92.5 m², idéale pour vos moments de détente en extérieur,deux places de parking extérieure, un véritable atout pour profiter d'un espace vert.Résidence bien entretenue avec cadre agréableAppartement spacieux et lumineuxClimatisation dans les chambres pour un confort optimalcet appartement est parfaitement situé pour répondre aux besoins des professionnels de santé, étudiants ou investisseurs.Pour plus d'informations ou pour organiser une visite, contactez-nous Ne manquez pas cette opportunité rare d'acquérir un T4 au dernier étage dans un emplacement aussi recherché !Livraison prévue au printemps 2025 !!!vous pouvez bénéficiez de la loi pinel, loi girardin
122.8 m²
4 471 €
4
3
2
Oui (91 lots)
Contact ERA > Sandy MERLIN
Contacter gratuitement à l'aide du formulaire ci-dessous.