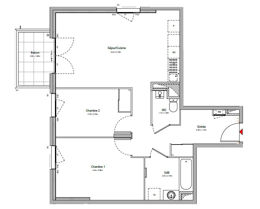
Métro Charpennes LIMITE LYON 6 A deux pas du métro et tram T1 T4 . Le parc de la tête d'or se trouve à 5 min à pied.Votre agence Era jean Macé Immobilier Lyon 7vous propose ce joli T4 traversant . Le bien est à proximité des transports écoles et commerces en limite du 6ème arrondissement.Situé au 2ème étage avec ascenseur d'une copropriété très bien tenue des années 50Le bien se compose d'un vaste hall à aménager , 2 chambres ( 3 possibles) orientées Est sur cour , une cuisine , une salle de bain , un wc séparé. Il est possible de créer un espace cuisine ouverte sur salon.Vous serez séduit parla hauteur sous plafond ainsi que le bel espace qu'offre la pièce de vie de 35 m² ouvrant sur un balcon filant de 6 m².Charges mensuelles 73? ( eau froide comprise)Possibilité d'installer la climatisation Une cave complète le bien.Les points forts: Proximité des transports et commercesFaibles charges Traversant et lumineux Pour les visites merci de contacter notre agence par mail ou téléphone .Mr Chenivesse O6.3O.8O.21.16
L'Etat des Risques et Pollution peut être consulté sur https://www.georisques.gouv.fr
90 m²
3 889 €
4
2
Oui (48 lots)
Contact ERA > ERAJEANMACEIMMOBILIER
Contacter gratuitement à l'aide du formulaire ci-dessous.