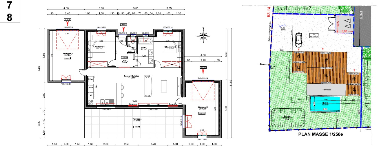
Dans un environnement rare et préservé, venez découvrir cette charmante maison située à la campagne, à seulement quelques kilomètres des commodités. Ici, le calme règne en maître : aucun vis-à-vis, aucune nuisance, simplement la nature et une vue dégagée sur les paysages environnants.Édifiée sur un grand terrain arboré de plus de 3000 m², cette maison offre un cadre de vie idéal pour les amoureux de tranquillité et d'espace. Elle se compose d'une belle pièce de vie lumineuse avec cuisine ouverte, parfaite pour partager des moments conviviaux en famille ou entre amis.Côté nuit, vous disposerez de trois chambres, offrant confort et fonctionnalité pour toute la famille. Un garage attenant complète ce bien, apportant un espace de rangement ou de stationnement pratique au quotidien.Contactez moi au 06.99.71.06.17 Nathalie Deschamps agent co RSAC Avignon 811984988 EI
110 m²
3 445 €
3100 m²
4
3
Oui
Oui
Contact ERA > Nathalie DESCHAMPS
Contacter gratuitement à l'aide du formulaire ci-dessous.