Goodshowcase
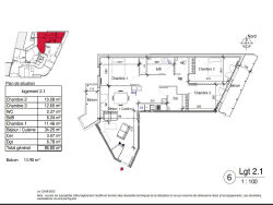
Vente appartement 4 pièces

Vente appartement 4 pièces
295 740 €

Contact ERA > ERAVIEUXMARCHE

Contacter gratuitement à l'aide du formulaire ci-dessous.


Afficher le téléphone


Annonces similaires

Vente appartement

Rouen 76000 - 0

300 000 €

...Plongez dans l'élégance et le confort de cet appartement T4 situé entre la Gare et la Place du...

Voir l'annonce

Vente appartement

Rouen 76000 - 0

270 000 €

...Idéalement situé rue du Renard, cet appartement entièrement rénové comprend : une entrée, un...

Voir l'annonce

Vente appartement

Rouen 76000 - 0

250 000 €

...Appartement traversant proposant de belles prestations avec un parquet au sol et aucuns travaux à...

Voir l'annonce

Vente appartement

Rouen 76000 - 0

249 500 €

...AB Conseils vous propose en EXCLUSIVITEce bel appartement de 91 m² en rez de jardin,Ce bien de...

Voir l'annonce

Vente appartement

Rouen 76000 - 0

237 000 €

...Celui-ci comprends :Une cuisine aménagée et équipée, une belle pièce de vie, lumineuse avec le...

Voir l'annonce