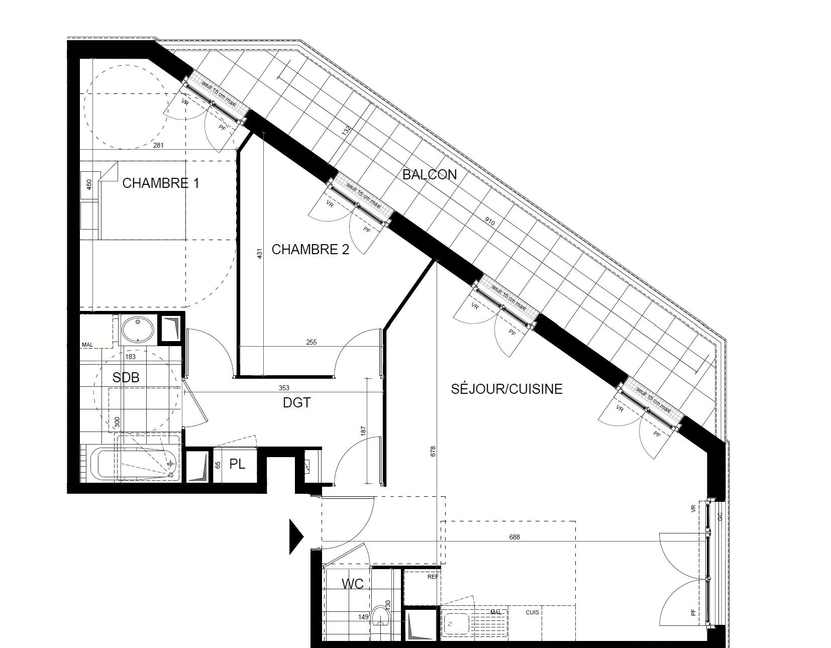
ERA Villaroy ? SQY IMMO vous propose un appartement neuf de 3 pièces d'une surface de 62 m², situé au 4? étage de la résidence Favori aux Clayes-sous-Bois, avec une livraison prévue au 1er trimestre 2026. Ce bien, idéalement agencé, comprend une entrée avec rangement, un vaste séjour lumineux ouvert sur une cuisine moderne, deux chambres ainsi qu'une salle de bains avec WC. Il bénéficie de prestations de qualité et répond aux dernières normes énergétiques. La résidence jouit d'un emplacement privilégié, à seulement 120 m du collège La Fosse aux Dames, 400 m d'une crèche, 550 m de l'école Henri Prou, et à proximité immédiate des centres commerciaux Mon Grand Plaisir et One Nation Paris (750 m). Les commodités telles que la mairie, les équipements sportifs et les lignes de bus 8, 42 et 44 facilitent les déplacements, notamment vers la gare de Plaisir Les Clayes (Transilien N). L'accès aux autoroutes A12 et A13, ainsi qu'à Versailles, aux forêts environnantes et à Paris (gare Montparnasse en 38 minutes) ajoute à l'attractivité de ce logement. Ce bien représente une excellente opportunité pour un premier achat, une famille ou un investissement, avec des frais de notaire réduits et une éligibilité aux dispositifs PTZ et PinelContactez-nous : 01 87 66 34 24 / 09 78 80 91 00 / villaroy@erafrance.com -------------Pensez à valider votre capacité de financement avant toute visite.
61.3 m²
4 388 €
3
2
1
Oui
Contact ERA > Adlène ASKRI
Contacter gratuitement à l'aide du formulaire ci-dessous.