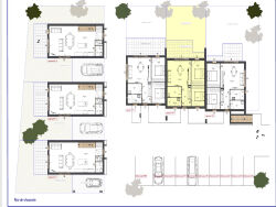
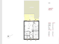
Nous vous proposons à l'achat, un appartement neuf de 58.44 m² en rez-de-jardin, vente en l'état futur d'achèvement (VEFA livraison prévue fin 2026), idéalement situé à proximité de la plage et des commerces de Stella plage.Il se compose ainsi :- Un dégagement avec placard.- Une belle pièce de vie avec salon/séjour donnant sur la terrasse et espace cuisine ouverte.- Un WC indépendant.- Un cellier.- Une salle d'eau.- Terrasse extérieure.- Espace engazonné.Construit sur une parcelle de 131 m² avec une place de parking privative.Les informations sur les risques auxquels ce bien est exposé sont disponibles sur le site Géorisques : www.georisques.gouv.frPour toutes informations ou pour visiter ce bien, veuillez contacter ERIC LAMAREau 06 15 36 31 31 : MAIL eric.lamare@eraimmo.frAgent commercial - N° RSAC 432 189 769 EIRéférence annonce: 760Stella-Plage est une commune française située dans le département du Pas-de-Calais, en région Hauts-de-France. C'est une station balnéaire du sud de la Côte d'Opale , située entre Le Touquet Paris Plage et Berck Plage.Contactez votre agence Immobilière ERA Agence du Casino, spécialiste de l'immobilier sur les villes de Berck, Merlimont, Rang du Fliers, Verton, Groffliers, Waben, Conchil le Temple, Airon Notre Dame, Airon Saint Vaast, Wailly Beaucamp, Lepine, Fort Mahon, Quend, Tigny-noyelle, Villers sur authie, Nampont, Nempont st firmin, Colline beaumont.
58.44 m²
5 647 €
131 m²
3
2
1
Oui (21 lots)
Contact ERA > Eric LAMARE
Contacter gratuitement à l'aide du formulaire ci-dessous.