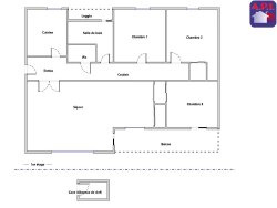
SPACIEUX T4 LUMINEUX A SAINT-GAUDENS À Saint-Gaudens, situé à proximité de l'ensemble des commodités, venez découvrir ce bel appartement de type 4 d'environ 80 m², au 1er étage d'une résidence calme et bien entretenue. Vous apprécierez les volumes généreux et la luminosité naturelle des pièces. L'espace de vie se compose d'un salon ouvrant sur le balcon. Une cuisine aménagée. Trois chambres confortables. De plus une cave et un stationnement dans la copropriété viendra agrémenter le tout. Le cadre de vie est agréable, et tout est accessible à pied : commerces, transports, établissements scolaires, et équipements sportifs. Bien soumis au statut juridique de la Copropriété. Nb de lots : 215. Charges annuelles de copropriété (Montant moyen annuel quote-part du budget prévisionnel vendeur) : 900,00 . Pas de procédure en cours. Votre agent commercial Jonathan GUELFUCCI (RSAC N° 954 089 165) au 06 43 19 04 30
82.15 m²
1 120 €
23 m²
4
3
1
1
1
75 € / mois
1970
Électrique
Oui
1
Oui (215 lots)
Consommations énergétiques
Logement économe
293
Logement énergivore (kWhEP/m2/an)
Émissions de gaz à effet de serre
Faible émission de GES
9
Forte émission de GES(kgeqCO2/m2/an)
Contact ARIEGE PYRENEES IMMOBILIER (API)
Contacter gratuitement à l'aide du formulaire ci-dessous.