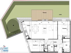
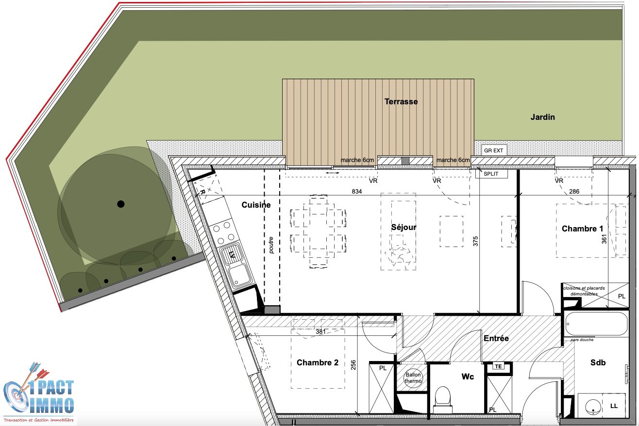
A vendre - Appartement T4 Toulouse / Guilhemery - Côte Pavée (31500)Votre agence ERA Jonquières & Co a le plaisir de vous présenter en exclusivité à la vente ce lumineux et traversant T4 de 90 m2, situé au 2ème étage avec ascenseur d'une résidence sécurisée située dans le secteur prisé de Guilhemery / Côte Pavée à Toulouse.Au coeur d'une résidence arborée, il offre une entrée avec placards menant sur une agréable pièce de vie très lumineuse de 41 m2 avec une cuisine ouverte et équipée donnant sur une terrasse de 10 m2 avec vue dégagée exposée Sud.Coté nuit, vous trouverez d'un coté une chambre disposant de sa propre salle d'eau et son WC et de l'autre coté 2 autres chambres avec placards, une grande salle de bain, un second WC indépendant ainsi qu'un coin rangement supplémentaire.L'appartement offre de nombreux rangements, il est également vendu avec une place de parking en sous-sol.Local vélos à disposition.Copropriété calme, bien entretenue.Situé à proximité immédiate de l'accès rocade (1km), Bus à 300 mètres, Métro François Verdier (1,8km), tous commerces de proximité, centre médical, Écoles publiques ou privées (Caousou, St-Joseph) accessibles à pieds.Plus d'informations sur http://www.immobilier-toulouse-cotepavee-era.fr/Contactez votre agence immobilière ERA Jonquieres & Co, spécialiste de l'immobilier.* Honoraires charge vendeur
L'Etat des Risques et Pollution peut être consulté sur https://www.georisques.gouv.fr
90 m²
4 211 €
4
3
1
Oui (35 lots)
Contact ERA > ERAIMMOBILIERJONQUIERES&CO
Contacter gratuitement à l'aide du formulaire ci-dessous.