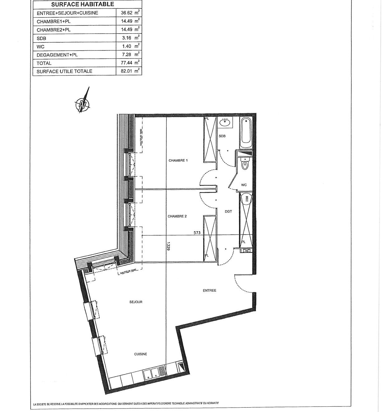
L'agence ERA Vignon vous présente ce magnifique appartement à VENDRE, idéalement situé dans le quartier prisé de Saint-Jean à Saint-Quentin (02100).Niché au deuxième étage d'un immeuble, ce spacieux appartement se compose d'une entrée accueillante, d'une cuisine fonctionnelle, et d'un lumineux salon qui donne sur une salle à manger. Cette dernière peut facilement être aménagée en une chambre supplémentaire, offrant ainsi une flexibilité précieuse.L'espace nuit comprend trois chambres confortables, une salle de bain et des WC séparés. Un balcon est accessible depuis le salon, la salle à manger et l'une des chambres, offrant un espace extérieur pour profiter des beaux jours.Pour plus de commodité, cet appartement est vendu avec un garage fermé et une cave.Aucun travaux n'est à prévoir. Ce bien est prêt à vous accueillir.Contactez dès à présent votre agence ERA Vignon Immobilier, l'expert de la transaction dans le secteur, pour organiser une visite et obtenir plus d'informations.
L'Etat des Risques et Pollution peut être consulté sur https://www.georisques.gouv.fr
95 m²
808 €
6 m²
5
3
1
Contact ERA > Charlene DEGREMONT
Contacter gratuitement à l'aide du formulaire ci-dessous.