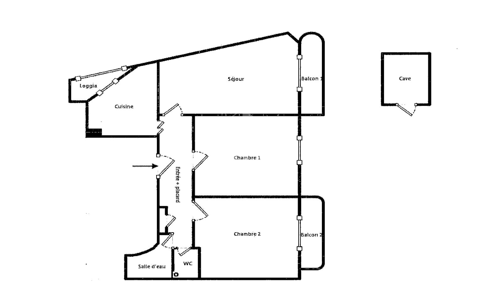
NICE - CENTRE VILLE/RUE CHÂTEAUNEUF : Dans une copropriété bien tenue des années 1960, JOLI 2 PIÈCES de 45M² AVEC BALCON. Composé d'une entrée, séjour donnant sur balcon, cuisine indépendante aménagée et équipée, chambre, dégagement, placards, salle de bains avec WC. Toutes les pièces donnant sur le balcon.Appartement en bon état avec tout le confort nécessaire, climatisation, double vitrage... Une cave complète ce bien. À proximité de tous commerces et commodités, à deux pas de la station de tramway et à quelques minutes de la Promenade des Anglais et des plages.Contactez notre agence immobilière Nice Era Gambetta, spécialiste de l'immobilier dans les quartiers Gambetta/Fleurs, Carré d'Or, Musiciens, pour plus d'informations ; vente, achat, estimation, conseil en immobilier...Contactez-nous au 04.92.07.87.52.
L'Etat des Risques et Pollution peut être consulté sur https://www.georisques.gouv.fr
41.14 m²
5 712 €
2
Oui (53 lots)
Contact ERA > Boris SHALUDESHEV
Contacter gratuitement à l'aide du formulaire ci-dessous.