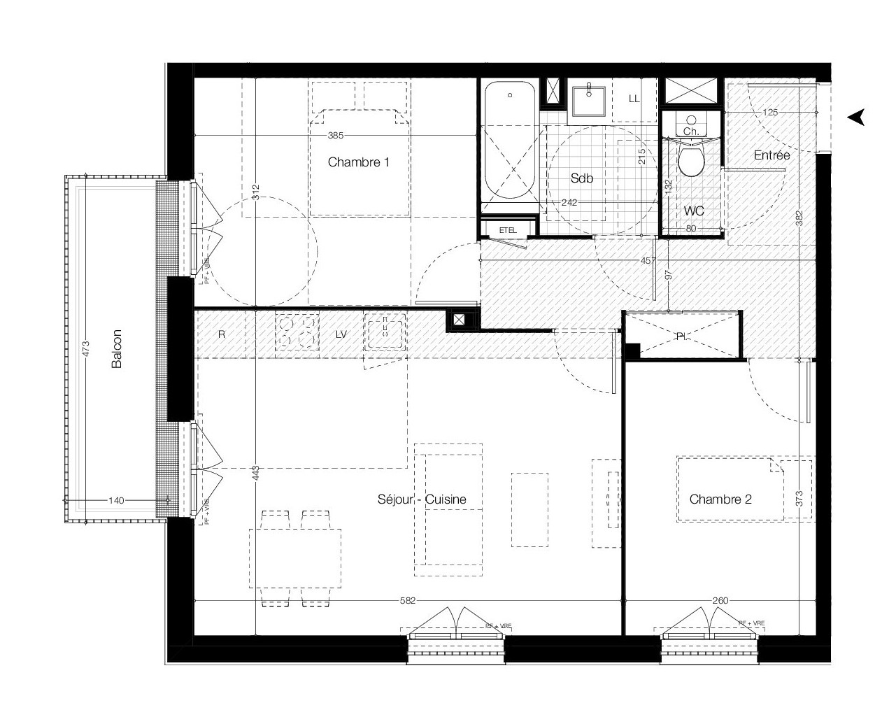
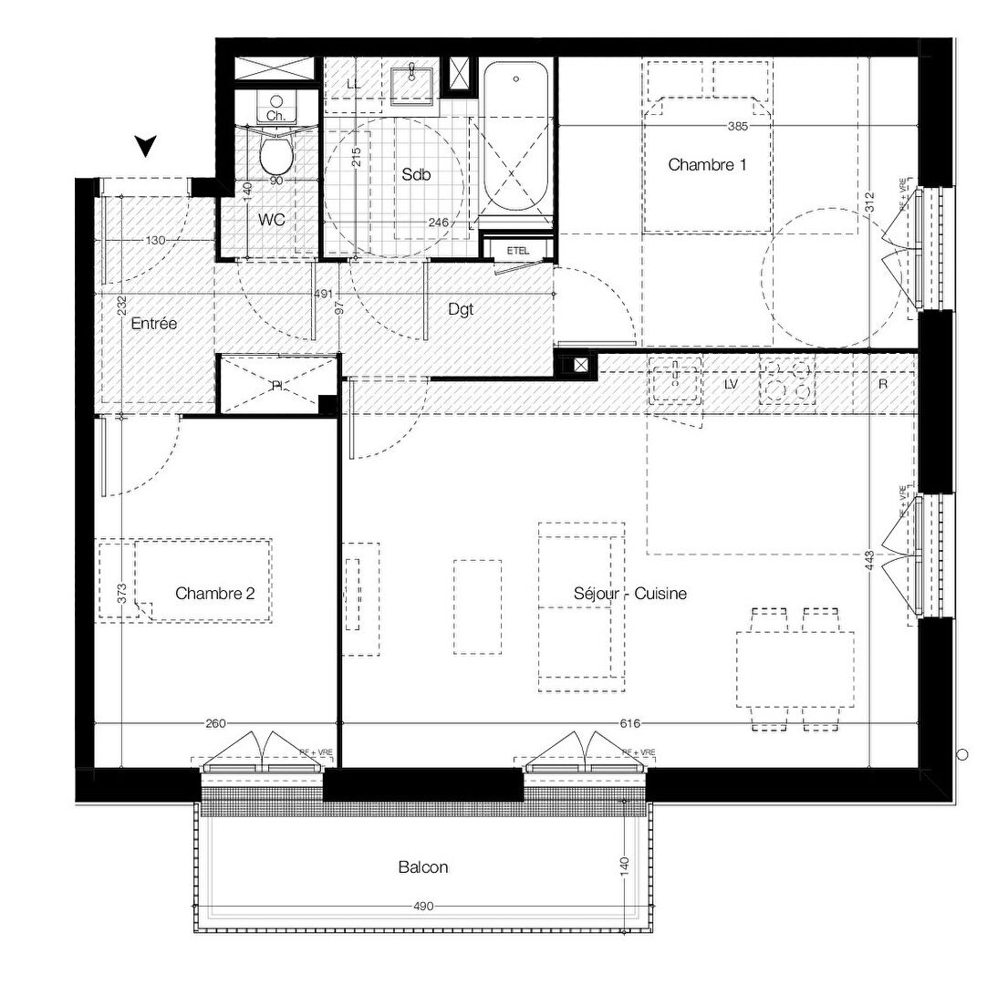
EN EXCLUSIVITE DANS VOTRE AGENCE ERA !Idéalement située en plein coeur du centre-ville de Vitré - BOULEVARD SAINT MARTIN.Venez découvrir cet appartement type 4 de 85m² habitable dans une résidence sécurisée et entretenue au 3ème étage (avec ascenseur) comprenant : Une entrée avec placard donnant accès à un premier WC, un salon-séjour donnant accès à un premier balcon, une cuisine semi-ouverte aménagée et équipée, un dégagement avec placards desservant 3 chambres dont 2 avec placards intégrés donnant accès à un second balcon, une salle d'eau, un WC indépendant.Ce bien est complété par un grand garage fermé d'environ 18 m² ainsi qu'une cave de 5m².Contactez votre agence ERA Immobilier, spécialiste de l'immobilier sur Vitré et Vitré Communauté.
85 m²
2 582 €
4
3
1
Oui (91 lots)
Contact ERA > Louise HALOPAU
Contacter gratuitement à l'aide du formulaire ci-dessous.