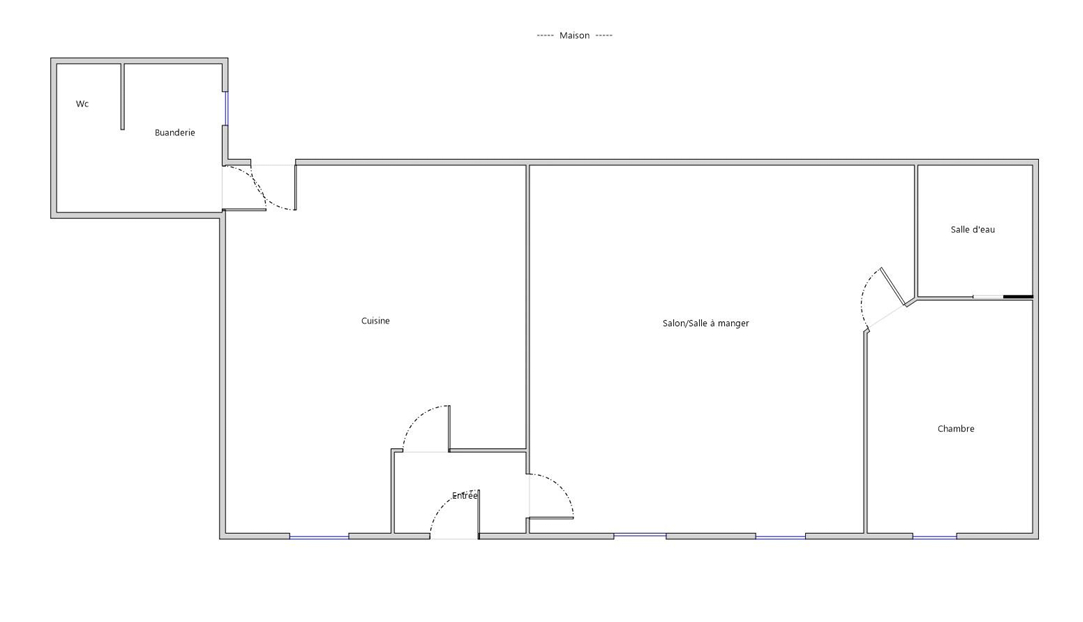
MAISON DE BOURG à GESTE, libre 01/10/2025 comprenant au rez de chaussee, un salon séjour, une cuisine indépendante aménager et équipée d'une hotte, plaque de cuisson, four, réfrigérateur encastré. une salle d'eau avec wc, A l'étage deux chambres, des wc. la maison est louée avec un garage non attenant mais de l'autre coté de l'impasse Les informations sur les risques naturels auxquels ce bien est exposé sont disponibles sur le site Géorisques : www.georisques.gouv.fr Honoraires : 6 990 TTC (6,99 %) inclus charge acquéreur (100 000 hors honoraires) MBC IMMO - Brigitte MERCIER - 06 52 84 63 79 - brigitte.mercier@mbcimmo.com - Plus d'informations sur www.mbcimmo.com (réf. 490034694)
59.62 m²
1 795 €
15.5 m²
191 m²
3
2
1
2
1920
Électrique
Consommations énergétiques
Logement économe
208
Logement énergivore (kWhEP/m2/an)
Émissions de gaz à effet de serre
Faible émission de GES
6
Forte émission de GES(kgeqCO2/m2/an)
Contact MBC IMMO
Contacter gratuitement à l'aide du formulaire ci-dessous.