Goodshowcase
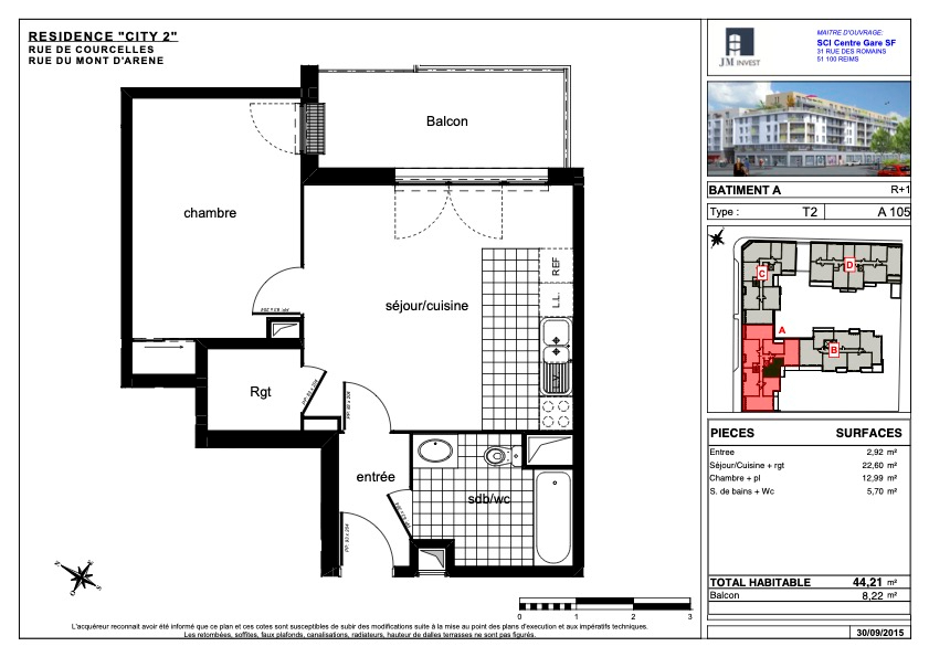
Vente appartement 3 pièces

Vente appartement 3 pièces
159 000 €

Contact ERA > ERAAGENCEMODERNED'EPERNAY

Contacter gratuitement à l'aide du formulaire ci-dessous.


Afficher le téléphone


Annonces similaires

Vente appartement

Reims 51100 - 0

171 200 €

...Au 1er étage d'une résidence de standing avec ascenseur, il se compose d'une entrée , d'un séjour...

Voir l'annonce

Vente appartement

Reims 51100 - 0

169 000 €

...En résidence avec ascenseur, bel appartement de type 2 au premier étage, comprenant entrée sur...

Voir l'annonce

Vente appartement

Reims 51100 - 0

160 920 €

...Cet appartement se compose d'un séjour avec cuisine ouverte de plus de 15 m2, d'une chambre...

Voir l'annonce

Vente appartement

Reims 51100 - 0

173 850 €

...60m², comprenant un séjour, une cuisine aménagée et équipée (four, plaque de cuisson, hotte,...

Voir l'annonce

Vente appartement

Reims 51100 - 0

162 000 €

...Vous serez séduit par cet appartement traversant, comprenant une belle entrée, séjour, cuisine...

Voir l'annonce