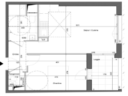
TOURS NORD - CHRIST ROIDans une résidence neuve, nous vous proposons ce T2 de 40.60m² situé au rez-de-chaussée avec ascenseur. Il se compose d'une entrée avec rangement, d'une pièce de vie avec cuisine donnant sur une loggia, d'une salle d'eau avec WC ainsi que d'une chambre.Chauffage et eau chaude individuel gaz.Entretien parties communes, entretien ascenseur, compris dans les provisions sur charges mensuelles et donnant lieu à une régularisation annuelle.Les honoraires de location TTC (à la charge du locataire) incluent le montant de rédaction des états des lieux facturé pour 121 euros TTC, après réalisation lors de l'entrée dans les lieux.
40.6 m²
2
1
Contact ERA > ERATOURAINEIMMOBILIER(S)
Contacter gratuitement à l'aide du formulaire ci-dessous.