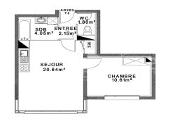
Charmant appartement lumineux de 39.25m² habitable situé à Etaples-sur-mer. Découvrez cet agréable appartement situé au deuxième étage qui se compose d'un séjour spacieux, d'une cuisine fonctionnelle, ainsi que d'une chambre confortable, une salle de bain.Deux places de stationnement viennent compléter le bien. Cet appartement constitue une excellente opportunité, que ce soit pour une résidence principale ou un investissement locatif.
L'Etat des Risques et Pollution peut être consulté sur https://www.georisques.gouv.fr
39.25 m²
3 032 €
2
1
2
Oui (160 lots)
Contact ERA > Jonathan BOUTON
Contacter gratuitement à l'aide du formulaire ci-dessous.