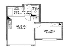
À vendre chez ERA SIX Immobilier! Charmant appartement lumineux de 39.25m² habitable situé à Etaples-sur-mer. Découvrez cet agréable appartement situé au deuxième étage qui se compose d'un séjour spacieux, d'une cuisine fonctionnelle, ainsi que d'une chambre confortable, une salle de bain.Deux places de stationnement viennent compléter le bien. Cet appartement constitue une excellente opportunité, que ce soit pour une résidence principale ou un investissement locatif.Pour tout renseignement complémentaire ou visiter tout simplement, n'hésitez pas à contacter votre négociateur Jonathan BOUTON (RSAC 989 001 029 EI - Agent commercial) au O6.27.59.I6.O8.
L'Etat des Risques et Pollution peut être consulté sur https://www.georisques.gouv.fr
39.25 m²
2 800 €
2
1
2
Oui (160 lots)
Contact ERA > Jonathan BOUTON
Contacter gratuitement à l'aide du formulaire ci-dessous.