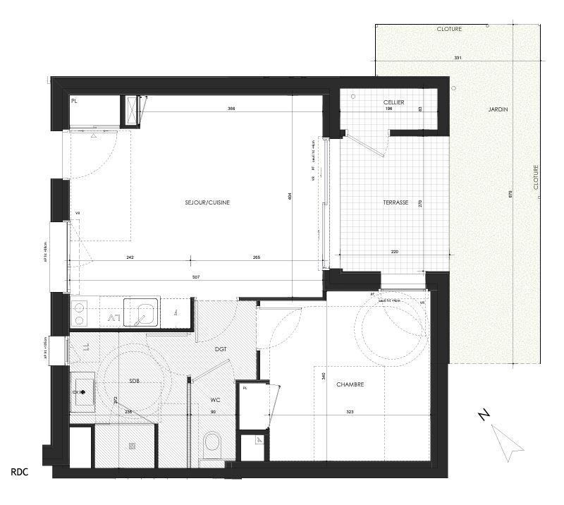
RARE ! Situé en plein coeur de Paramé, dans une rue calme à proximité immédiate des commerces, des transports et de toutes les commodités, cet appartement 3 pièces de 62.11 m² offre un cadre de vie pratique et agréable. Au 1er étage d'une petite copropriété bien entretenue, sans travaux à prévoir, il conviendra aussi bien pour une résidence principale que pour un pied-à-terre ou un investissement locatif. L'appartement se compose d'1 pièce de vie lumineuse exposée plein sud, sans vis-à-vis, 1 cuisine séparée, 2 chambres lumineuses, 1 salle d'eau, wc séparé ainsi qu'1 dégagement avec placard. En bon état général, ce bien dispose également d'annexes appréciables : 1 cave, 1 cellier privatifs et 1 place de stationnement, un véritable atout en centre-ville. L'immeuble bénéficie en + d'un local vélo.Cette annonce vous est présentée par l'agence ERA Les Remparts : 0299404313
L'Etat des Risques et Pollution peut être consulté sur https://www.georisques.gouv.fr
62.11 m²
4 973 €
3
2
1
Oui (39 lots)
Contact ERA > CLAIRE JAN SIMPSON
Contacter gratuitement à l'aide du formulaire ci-dessous.