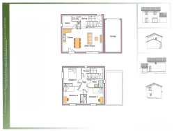
Découvrez votre future maison jumelée par le garage, conçue pour allier confort et modernité, en collaboration avec nos partenaires de confiance. Cette maison de plain-pied vous offre un cadre de vie idéal, avec un salon-séjour spacieux et lumineux.Elle se compose de 3 chambres confortables, la salle d'eau moderne est conçue pour votre bien-être. Profitez d'un chauffage au sol par pompe à chaleur, garantissant une chaleur douce et homogène tout en respectant les normes de la réglementation environnementale RE2020. Cette maison est conçue pour être éco-responsable, vous permettant de réaliser des économies d'énergie tout en préservant l'environnement.Ne manquez pas cette opportunité de construire la maison de vos rêves dans un cadre paisible et agréable. Contactez-nous dès aujourd'hui pour plus d'informations et pour discuter de votre projet !Honoraires d'agence charge acquéreur = avantage fiscal (pas de frais de notaire sur nos honoraires).
83 m²
3 904 €
480 m²
4
3
Contact ERA > Daniel FACCHINETTI
Contacter gratuitement à l'aide du formulaire ci-dessous.