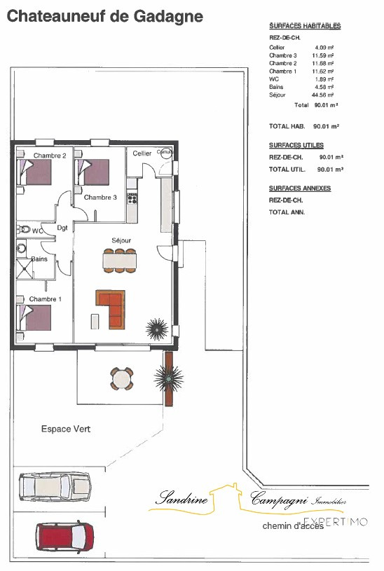
EXCLUSIVITÉ À VENDRE ? ENTRE AVIGNON ET L'ISLE SUR LA SORGUE - Superbe maison à Châteauneuf-de-GadagneSituée dans l'un des villages les plus prisés et recherchés du Vaucluse, sur le plateau, cette maison bénéficie d'un emplacement exceptionnel en fond d'impasse, avec portail sécurisé, garantissant calme et tranquillité.Régulièrement entretenue depuis sa construction, elle offre aujourd'hui une fonctionnalité optimale et une qualité de vie rare.Extérieur, sur un terrain de 300 m², vous découvrirez un magnifique jardin exposé Ouest, soigneusement aménagé :Graviers bicolores élégantsDalles type ?pas japonais'Végétation sélectionnée avec goûtTerrasse abritée du vent, idéale pour profiter des extérieurs toute l'anéePlusieurs abris pour le bois et les vélosUn atelier de stockageUn véritable havre de paix.Intérieur sur une surface de 120 m² de surface habitable : la maison se compose de :Une pièce à vivre lumineuse de 38 m² avec une cuisine aménagée et équipée de qualitéUne arrière-cuisine / cellierUn toilette avec lave-mainsUn salon ouvrant sur une terrasse à l'EstUne suite parentale au rez-de-chaussée avec toilettesÀ l'étage, dans une ambiance chaleureuse type chalet avec parquet bois :Deux chambres, possibilité d'en faire une supplémentaireUne salle de bainUn toilette et de nombreux placards sur 20 m² de surface en sous pente.Les +? Emplacement recherché? Maison entretenue et prête à vivre? Double exposition Est / Ouest? Calme absolu? Jardin et terrasses optimisésPrête pour une installation immédiateCette maison correspondra à toutes vos envies et besoins.Contactez-nous sans tarder pour une visite ? elle ne restera pas longtemps sur le marché !Le diagnostic de performance énergétique est en coursLes honoraires sont à la charge des vendeurs.Le barème est consultable sur notre site. Les informations sur les risques auxquels ce bien est exposé sont disponibles sur le site Géorisques http://www.georisques.gouv.fr
120 m²
2 892 €
300 m²
5
3
Contact ERA > Rachel LINDO
Contacter gratuitement à l'aide du formulaire ci-dessous.