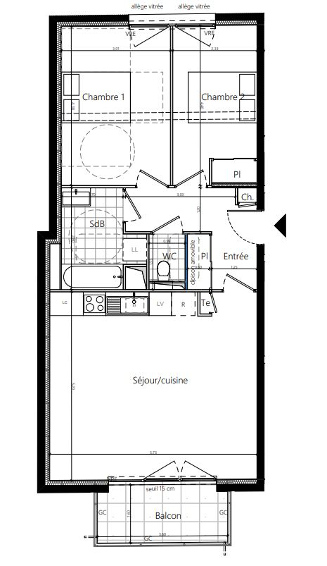
Découvrez ce beau T3 avec une vue imprenable sur la Vilaine et la Métropole Rennaise, situé au 12ème et dernier étage d'un immeuble construit en 2005, offrant une surface de 69 m². Cet appartement se compose de 3 pièces, dont 2 chambres spacieuses avec placards. La cuisine est ouverte, aménagée et équipée moderne avec une belle verrière. Le séjour lumineux, bénéficiant d'e cette vue exceptionnelle. L'appartement dispose d'une salle de bain et d'un WC séparé, ainsi que d'un garage fermé et d'un balconnet avec une superbe vue dégagée. De plus, vous pourrez profiter d'un jardin partagé à l'arrière de la copropriété pour vous détendre à l'extérieur.Situé dans le secteur prisé de Thabor à Rennes, vous serez à seulement 10 minutes à pied de l'École maternelle publique Pablo Picasso et du campus Beaulieu, et à proximité du parc Oberthur, crèches et autres commodités. Le supermarché le plus proche est à seulement 100 mètres, et les bus sont au pied de l'immeuble, rendant votre quotidien pratique, agréable et facile. Contactez Thibault HOUSSIN (EI) RSAC 953 040 532 au 07.69.25.95.39 de l'agence ERA VOLTAIRE IMMOBILIER pour plus d'informations et pour organiser une visite !
L'Etat des Risques et Pollution peut être consulté sur https://www.georisques.gouv.fr
69 m²
4 709 €
3
2
1
Oui
Oui (297 lots)
Contact ERA > Thibault HOUSSIN
Contacter gratuitement à l'aide du formulaire ci-dessous.